09:00 - 17:00

sydvendt 3 soveroms i Dream Hills , Del av firemannsbolig med takterrasse og Privat Oppvarmet Basseng

Ref: 4-B-Z1043
RESERVERT
83m2 <71m2 3 2 Privat basseng

Nøkkelinformasjon

Soverom: 3
Baderom: 2
Bygget: 83m2
Tomt: 71m2
Type kjøkken: Separat kjøkken
Integrerte garderobeskap: 3
Energisertifisering: E
Byggeår: 2003
Solretning : Sør
Sameiekostnader: 354 €
IBI: 204 €

Karakteristikk

Bod
Innglasset terrasse
Takterrasse
Markise
Klimaanlegg
Hage
Lys
Kjøpesentre
Felles basseng
Sykehus
Bussholdeplass
Åpen utsikt
Drikkevannsfilter

Beskrivelse

Dette sørvendte hjørnehuset, Cuatrobolig  i Dream Hills I, mellom La Florida og Los Altos i Orihuela Costa, har rikelig med naturlig lys store deler av dagen, som skaper en lys og innbydende atmosfære. Perfekt som feriebolig og helårsbolig.

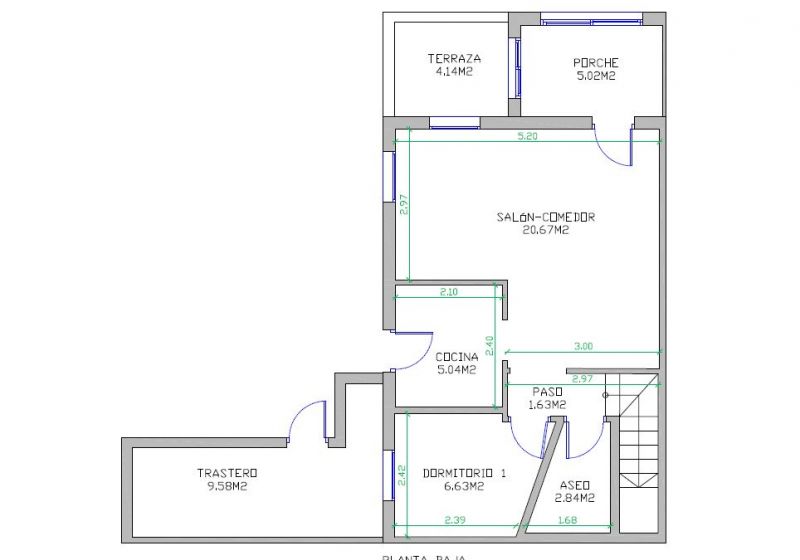
I 1. etasje finner du en lys stue, et uavhengig kjøkken med direkte utgang til hagen, et renovert bad med dusj, et rom som for øyeblikket brukes som spisestue, og en innglasset terrasse, et funksjonelt rom som kan tilpasses etter behov.

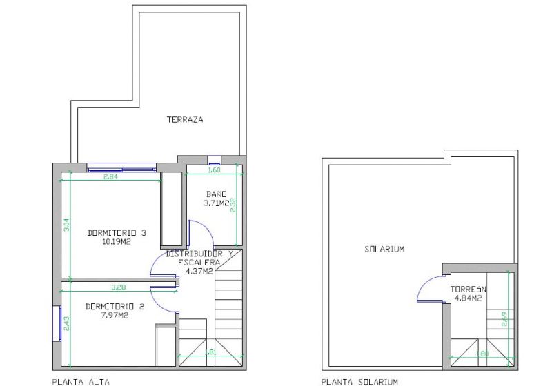
I 2. etasje er det to soverom, hvorav ett har utgang til en terrasse, samt et andre renovert bad med dusj. En trapp leder opp til privat solarium, perfekt for å nyte solen og den åpne utsikten.

Uteområdet har en flislagt hage med terrasse, en pergola med uttrekkbart markise og et privat oppvarmet basseng på 2x3 m med trinn, ideelt for avslapning. Boligen selges semi-møblert, klar til innflytting.

Boligkomplekset har også to felles svømmebassenger eksklusivt for beboerne.

Praktisk beliggenhet nær butikker, skoler, sykehus, apotek og alle tjenester, med rask tilgang til motorveiene mot Alicante og Murcia, og kort vei til strendene i Torrevieja og Orihuela Costa.

Ikke gå glipp av muligheten—kontakt oss i dag for mer informasjon eller for å avtale visning

Beliggenhet

Plantegning

Videoer

Økonomi

PRISER er oppgitt EX 10% ITP på bruktbolig og skjøtekostnader / og på nybygg ex 10%IVA og 1,5% AJD og skjøtekostnader- Du kan låne i spanske banker 50- 70% av laveste valør, enten kjøpesummen eller taksten finansieres opp til 30 år, max til lånetager fylte 70 år, renten er Euribor pluss ca 2,5 % i gjennomsnitt. Kontakt oss for ytterligere informasjon.

Beregn boliglån

Valutakalkulator

  • Britiske Pund: 208.332 GBP
  • Russiske rubel: 208.332 RUB
  • Sveitsiske Franc: 220.621 CHF
  • Kinesiske yuan: 1.923.544 CNY
  • US Dollar: 281.948 USD
  • Svenske kroner: 2.581.917 SEK
  • Norske kroner : 2.633.063 NOK

Suma/IBI

204€ €

354€ anuales €

Be om informasjon

Responsable del tratamiento: Lundquist & Nielsen SLU, Finalidad del tratamiento: Gestión y control de los servicios ofrecidos a través de la página Web de Servicios inmobiliarios, Envío de información a traves de newsletter y otros, Legitimación: Por consentimiento, Destinatarios: No se cederan los datos, salvo para elaborar contabilidad, Derechos de las personas interesadas: Acceder, rectificar y suprimir los datos, solicitar la portabilidad de los mismos, oponerse altratamiento y solicitar la limitación de éste, Procedencia de los datos: El Propio interesado, Información Adicional: Puede consultarse la información adicional y detallada sobre protección de datos Aquí.
Energisertifisering
Energiklassifisering: E
16