09:00 - 17:00

Zeniamar I – rekkehus, på hjøretomt 3 soverom, møblert og klart til innflytting

Ref: 4-B-Z1037
89m2 <88m2 3 2 Felles basseng

Nøkkelinformasjon

Soverom: 3
Baderom: 2
Bygget: 89m2
Tomt: 88m2
Type kjøkken: Åpen amerikansk kjøkkenløsning
Integrerte garderobeskap: 3
Energisertifisering: E
Byggeår: 2001
Solretning : Nordøst
Sameiekostnader: 648 €
IBI: 217 €

Karakteristikk

Møblert
Bod
Vaskerom
Innglasset terrasse
Hjørne
Sikkerhetsdør
Klimaanlegg
Hage
Lys
Kjøpesentre
Felles basseng
Skoler
Åpen utsikt
Utvendig belysning

Beskrivelse

Dette attraktive hjørnerekkehuset i den ettertraktede urbanisasjonen Zeniamar I tilbyr lys, romslighet og rolig beliggenhet – perfekt som både helårsbolig eller feriebolig.
Urbanisasjonen har generøse fellesområder med hager, stort svømmebasseng og et avslappet miljø, med kort vei til alt du trenegr i  det daglige. Supermarkeder, kafeer, restauranter, kjente Zenia Boulevard kjøpesenter, Playa Flamenca-markedet og strendene i Orihuela Costa.

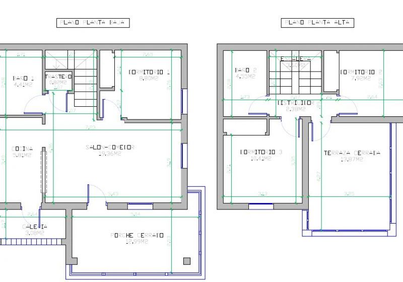
I første etasje finner du en innglasset terrasse som leder inn til en lys stue/spisestue, åpen kjøkkenløsning med vaskerom, ett soverom, et komplett bad og praktisk bod. Boligen selges møblert og med hvitevarer, klar til å flytte inn i.

I andre etasje er det to soverom, bad og innglasset terrasse med åpen utsikt, ideell for avslapning og fritid.

Eiendommen har en hjørnetomt på ca. 88 m², perfekt for privat hage, samt ekstra lbod ute ti l redskap og sykler.

Et lyst, funksjonelt og godt plassert hjem som kombinerer roen i urbanisasjonen med nærheten til alle fasiliteter og attraksjoner i Orihuela Costa. Ta kontakt i dag for å avtale visning!

Beliggenhet

Plantegning

Videoer

Økonomi

PRISER er oppgitt EX 10% ITP på bruktbolig og skjøtekostnader / og på nybygg ex 10%IVA og 1,5% AJD og skjøtekostnader- Du kan låne i spanske banker 50- 70% av laveste valør, enten kjøpesummen eller taksten finansieres opp til 30 år, max til lånetager fylte 70 år, renten er Euribor pluss ca 2,5 % i gjennomsnitt. Kontakt oss for ytterligere informasjon.

Beregn boliglån

Valutakalkulator

  • Britiske Pund: 207.811 GBP
  • Russiske rubel: 207.811 RUB
  • Sveitsiske Franc: 218.040 CHF
  • Kinesiske yuan: 1.965.656 CNY
  • US Dollar: 284.267 USD
  • Svenske kroner: 2.536.627 SEK
  • Norske kroner : 2.703.449 NOK

Suma/IBI

217€ €

648€ año €

Be om informasjon

Responsable del tratamiento: Lundquist & Nielsen SLU, Finalidad del tratamiento: Gestión y control de los servicios ofrecidos a través de la página Web de Servicios inmobiliarios, Envío de información a traves de newsletter y otros, Legitimación: Por consentimiento, Destinatarios: No se cederan los datos, salvo para elaborar contabilidad, Derechos de las personas interesadas: Acceder, rectificar y suprimir los datos, solicitar la portabilidad de los mismos, oponerse altratamiento y solicitar la limitación de éste, Procedencia de los datos: El Propio interesado, Información Adicional: Puede consultarse la información adicional y detallada sobre protección de datos Aquí.
Energisertifisering
Energiklassifisering: E
18