09:00 - 17:00

Bungalow · Nybygg Alicante · Torrevieja · Los Balcones

Ref: R-40399
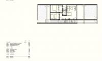
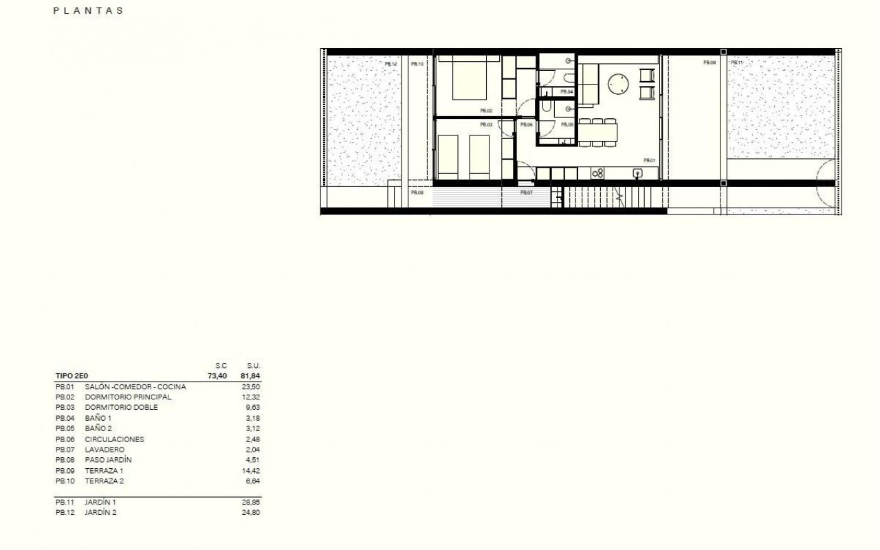
81m2 <53m2 2 2 Ja

Nøkkelinformasjon

Soverom: 2
Baderom: 2
Bygget: 81m2
Tomt: 53m2
Energisertifisering: B

Karakteristikk

Hage
Parkering
Felles basseng
Inngjerdet
Air Conditioning: Pre-Installed
Double Bedrooms: 2
Number of Parking Spaces: 1
Near Golf / Golf Resort Property
Near Schools
Near Commercial Center
Location: Coastal, Urbanisation
Beach: 3500 Meters
Terrace: 20 Msq.
Storage / Trastero

Beskrivelse

Nybyggede leiligheter i Los Balcones, Torrevieja Moderne boliger i et førsteklasses boligområde Oppdag dette attraktive nybyggede boligkomplekset i Los Balcones, et av de mest populære og etablerte nabolagene i utkanten av Torrevieja. Dette boligprosjektet ligger i et fredelig miljø med utmerket tilgang til alle nødvendige tjenester, bare 4 km fra sandstrendene på Costa Blanca. Los Balcones er kjent for sin avslappede atmosfære, brede gater, grønne områder og nærhet til sykehus, supermarkeder, restauranter og kjøpesentre, noe som gjør det ideelt for helårsbolig eller feriebolig. Moderne leiligheter med private uteområder Komplekset består av 52 moderne leiligheter bygget på et totalt areal på 6700 m2. Hver eiendom har en privat parkeringsplass og en bod i kjelleren. Boligene har 2 eller 3 soverom og 2 bad, hvorav det ene er en suite. Kjøpere kan velge mellom leiligheter i første etasje med privat hage eller boliger i øvre etasje med romslig terrasse og privat solarium. Disse planløsningene er designet for å maksimere naturlig lys og gi komfortable innendørs og utendørs oppholdsrom for å nyte middelhavsklimaet hele året. Fellesarealer designet for avslapning Prosjektet er organisert i fire blokker som omgir et stort sentralt fellesareal. Dette grønne hjertet av prosjektet har et svømmebasseng med et eget barneområde og vakre hager. Disse fellesarealene er perfekte for avslapning, sosialt samvær og familietid i et trygt og vennlig miljø. Kvalitetsfunksjoner og energieffektiv design Hver leilighet er bygget etter moderne standarder og inkluderer forhåndsinstallasjon av kanalisert klimaanlegg, et aerotermisk varmtvannssystem for forbedret energieffektivitet, utvendig belysning og doble vinduer. Kjøkkenene er fullt møblerte og tilbyr et funksjonelt og stilig rom for daglig bruk. Disse funksjonene sikrer høy komfort, lite vedlikehold og redusert energiforbruk, noe som gjør boligene både praktiske og bærekraftige. Utmerket beliggenhet nær strender og golf Los Balcones har en strategisk beliggenhet nær mange interessante steder. Strendene i Torrevieja ligger omtrent 4 km unna. Flere kjente golfbaner, som Villamartin Golf, Las Ramblas Golf og Campoamor Golf, ligger innenfor 10 til 15 km. Universitetssykehuset i Torrevieja ligger mindre enn 2 km unna, noe som gir ekstra bekvemmelighet og trygghet. Torrevieja sentrum ligger rundt 5 km unna, med bussforbindelse til Los Balcones, hvor du finner et bredt utvalg av butikker, restauranter, kulturarenaer og en livlig marina. Alicante internasjonale lufthavn ligger omtrent 42 km unna, med gode internasjonale forbindelser. Torrevieja havn ligger omtrent 6 km unna. Ideelt for å bo eller investere Med sitt moderne design, utmerkede fellesarealer og førsteklasses beliggenhet nær strender, golfbaner og tjenester, er dette nye boligkomplekset i Los Balcones Torrevieja perfekt som permanent bolig, feriebolig eller investeringsmulighet. Kontakt oss i dag for mer informasjon eller for å avtale visning av disse nybygde leilighetene i Los Balcones, Torrevieja.

Beliggenhet

Økonomi

PRISER er oppgitt EX 10% ITP på bruktbolig og skjøtekostnader / og på nybygg ex 10%IVA og 1,5% AJD og skjøtekostnader- Du kan låne i spanske banker 50- 70% av laveste valør, enten kjøpesummen eller taksten finansieres opp til 30 år, max til lånetager fylte 70 år, renten er Euribor pluss ca 2,5 % i gjennomsnitt. Kontakt oss for ytterligere informasjon.

Beregn boliglån

Valutakalkulator

  • Britiske Pund: 225.744 GBP
  • Russiske rubel: 225.744 RUB
  • Sveitsiske Franc: 236.234 CHF
  • Kinesiske yuan: 2.122.505 CNY
  • US Dollar: 307.226 USD
  • Svenske kroner: 2.751.979 SEK
  • Norske kroner : 2.933.434 NOK

Be om informasjon

Responsable del tratamiento: Lundquist & Nielsen SLU, Finalidad del tratamiento: Gestión y control de los servicios ofrecidos a través de la página Web de Servicios inmobiliarios, Envío de información a traves de newsletter y otros, Legitimación: Por consentimiento, Destinatarios: No se cederan los datos, salvo para elaborar contabilidad, Derechos de las personas interesadas: Acceder, rectificar y suprimir los datos, solicitar la portabilidad de los mismos, oponerse altratamiento y solicitar la limitación de éste, Procedencia de los datos: El Propio interesado, Información Adicional: Puede consultarse la información adicional y detallada sobre protección de datos Aquí.
Energisertifisering
Energiklassifisering: B