09:00 - 17:00

HJØRNE- Zeniamar V. Koselig Quad-rekkehus, 3 soverom, takterrasse, garasje med bod

Ref: 4-B-Z1038
Nylansert
119m2 <69m2 3 2 Felles basseng Privat

Nøkkelinformasjon

Soverom: 3
Baderom: 2
Bygget: 119m2
Tomt: 69m2
Type kjøkken: Åpen amerikansk kjøkkenløsning
Integrerte garderobeskap: 3
Energisertifisering: E
Byggeår: 2004
Solretning : Sørvest
Sameiekostnader: 737 €
IBI: 298 €

Karakteristikk

Grill
Åpen utsikt
Utvendig belysning
Møblert
Bod
Vaskerom
Innglasset terrasse
Takterrasse
Markise
Gulvvarme
Hjørne
Sikkerhetsdør
Klimaanlegg
Hage
Lys
Kjøpesentre
Felles basseng
Skoler

Beskrivelse

Zeniamar V- pent oppgradert hjørnetomt Quad-rekkehus over to etasjer pluss solarium, forbundet med innvendig trapp og kun få skritt fra felles svømmebasseng, i det attraktive boligområdet Zeniamar V – Orihuela Costa.
En lys og komfortabel bolig, perfekt både som helårsbolig og feriebolig.
Urbanisasjonen er privat, inngjerdet med tilgang kun for beboerne og tilbyr velstelte hager, to felles basseng og rolige omgivelser,
Kort avstand til supermarkeder, kafeer, restauranter, det populære Zenia Boulevard kjøpesenter, markedet i Playa Flamenca og strendene langs Orihuela Costa.

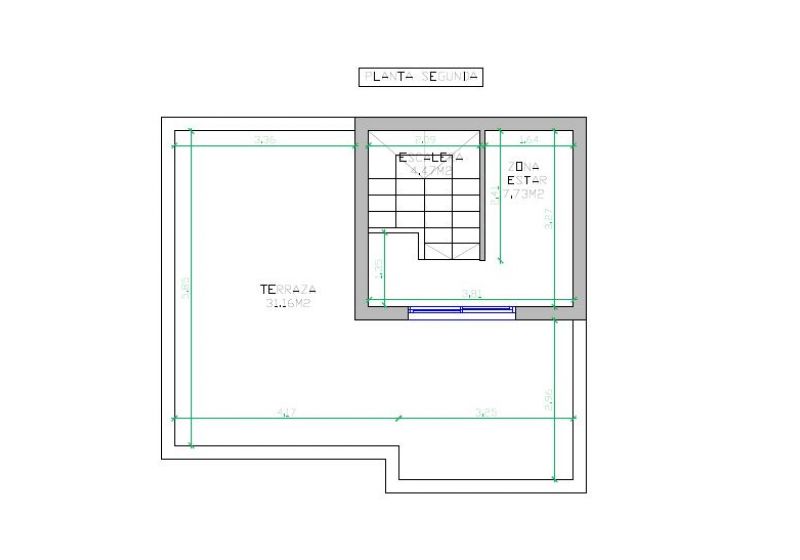
I første etasje finner vi en romslig innglasset terrasse med direkte adkomst til stuen, et fullt utstyrt åpent kjøkken med hvitevarer og vaskerom,   soverom,  renovert bad med gulvvarme, samt praktisk bod.
Andre etasje består av ytterligere to soverom,  bad og  terrasse med både innglasset og åpen del, med fri utsikt og gode solforhold.
I øverste etasje finnes et fleksibelt rom som kan benyttes etter behov (bod, kontor eller oppholdsrom inkludert overnatting,) samt en stor åpen terrasse, ideell for å nyte det behagelige klimaet året rundt.
Eiendommen har også en flislagt hjørnehage på ca. 69 m², med god plass til utemøbler, grill eller en hyggelig chill-out-sone.
Boligen holder meget god standard, har inverter klimaanlegg i alle rom, selges møblert og fullt utstyrt, og inkluderer garasjeplass samt romslig bod med ekstra bred dør til motorsykkel  i sameiets underjordiske garasje.

Ta gjerne kontakt for mer informasjon eller for å avtale en visning og oppleve boligen personlig.

Beliggenhet

Plantegning

Videoer

Økonomi

PRISER er oppgitt EX 10% ITP på bruktbolig og skjøtekostnader / og på nybygg ex 10%IVA og 1,5% AJD og skjøtekostnader- Du kan låne i spanske banker 50- 70% av laveste valør, enten kjøpesummen eller taksten finansieres opp til 30 år, max til lånetager fylte 70 år, renten er Euribor pluss ca 2,5 % i gjennomsnitt. Kontakt oss for ytterligere informasjon.

Beregn boliglån

Valutakalkulator

  • Britiske Pund: 303.456 GBP
  • Russiske rubel: 303.456 RUB
  • Sveitsiske Franc: 318.393 CHF
  • Kinesiske yuan: 2.870.351 CNY
  • US Dollar: 415.101 USD
  • Svenske kroner: 3.704.112 SEK
  • Norske kroner : 3.947.714 NOK

Suma/IBI

298€ €

737€ año €

Be om informasjon

Responsable del tratamiento: Lundquist & Nielsen SLU, Finalidad del tratamiento: Gestión y control de los servicios ofrecidos a través de la página Web de Servicios inmobiliarios, Envío de información a traves de newsletter y otros, Legitimación: Por consentimiento, Destinatarios: No se cederan los datos, salvo para elaborar contabilidad, Derechos de las personas interesadas: Acceder, rectificar y suprimir los datos, solicitar la portabilidad de los mismos, oponerse altratamiento y solicitar la limitación de éste, Procedencia de los datos: El Propio interesado, Información Adicional: Puede consultarse la información adicional y detallada sobre protección de datos Aquí.
Energisertifisering
Energiklassifisering: E
17