09:00 - 17:00

Nybyggede del av firemannsbolig- alt-på-en flate Daya Nueva

Ref: R-39372
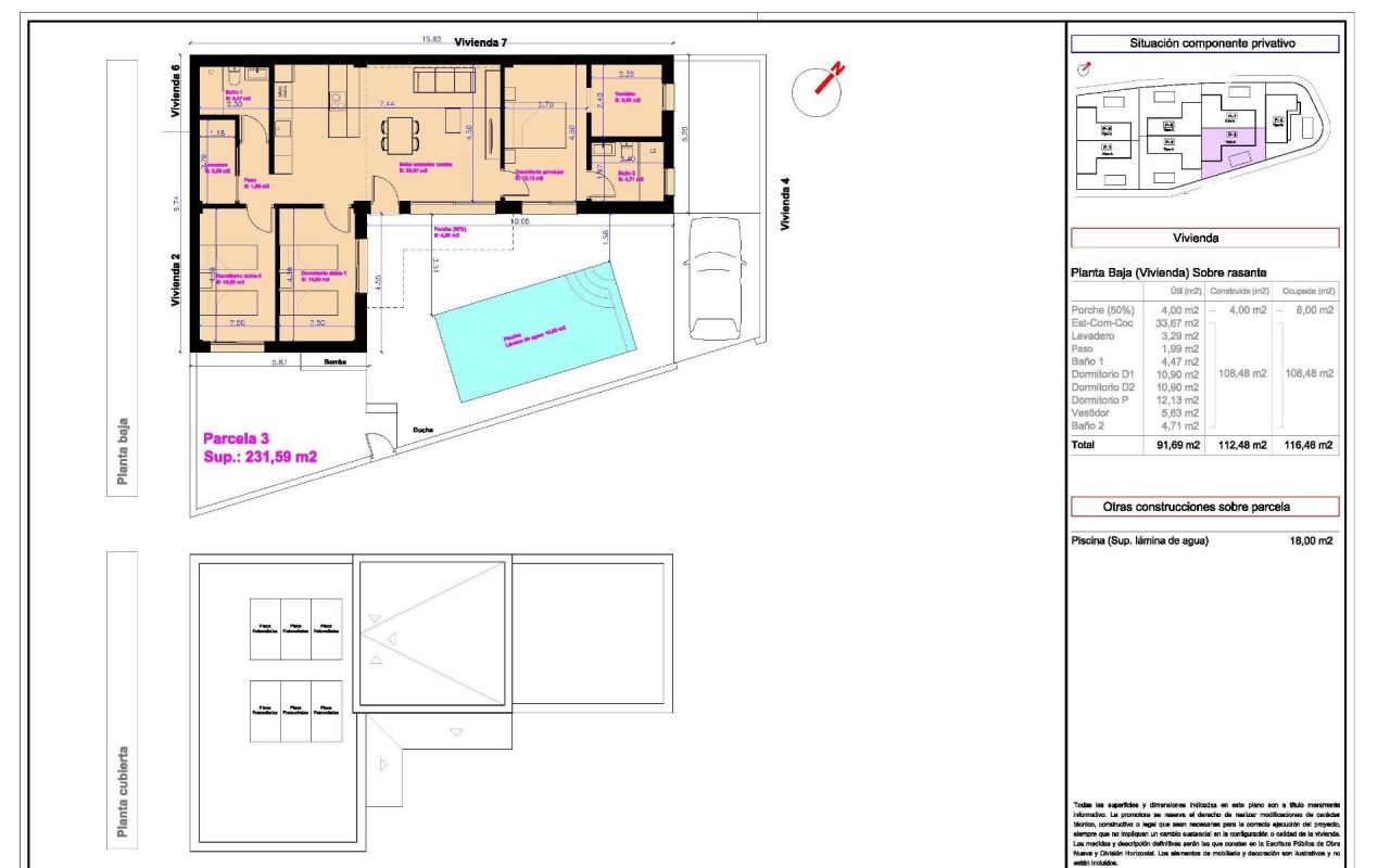
108m2 <231m2 3 2 Ja

Nøkkelinformasjon

Soverom: 3
Baderom: 2
Bygget: 108m2
Tomt: 231m2
Energisertifisering: X

Karakteristikk

Privat basseng
Parkering
Inngjerdet
Air Conditioning: Pre-Installed
Number of Parking Spaces: 1
Near Schools
Double Bedrooms: 3
Terrace: 18 Msq.
Beach: 13000 Meters
Location: Rural, Urbanisation

Beskrivelse


Landsbyen Daya Nueva er den perfekte kombinasjonen av en rolig og komfortabel livsstil på landet og de livlige kystområdene på Costa Blanca, bare en kort kjøretur unna.

Dette prosjektet med nybygde, semi-frittstående og frittstående villaer er designet med stor oppmerksomhet på detaljer og bygget med høy standard. Alle villaene vil ha sin egen private svømmebasseng.

DIN EGEN PLASS Å BO, ALT PÅ ÉN ETASJE
Designet har et lyst, friskt og moderne preg.

Ligger i en liten landsby i den sørlige delen av provinsen Alicante. Landsbyen heter Daya Nueva.

Nybyggede villaer i ett plan i den nye delen av Daya Nueva. Bare noen få minutters gange fra sentrum av landsbyen. Eiendommen består av 3 soverom, 2 bad og et privat svømmebasseng på 18 m². Stue/spisestue med dobbel takhøyde, åpen kjøkkenløsning, naturlig lys og mulighet for solarium mot ekstra kostnad. Hovedsoverommet har mulighet for walk-in-closet og eget bad.

Ligger i et nytt og rolig boligområde, ca. 10 minutter fra stranden La Marina del Pinet og Guardamar del Segura. Enkel tilgang til motorveien A-70 og ca. 25 minutter fra Alicante internasjonale flyplass.

Beliggenhet

Økonomi

PRISER er oppgitt EX 10% ITP på bruktbolig og skjøtekostnader / og på nybygg ex 10%IVA og 1,5% AJD og skjøtekostnader- Du kan låne i spanske banker 50- 70% av laveste valør, enten kjøpesummen eller taksten finansieres opp til 30 år, max til lånetager fylte 70 år, renten er Euribor pluss ca 2,5 % i gjennomsnitt. Kontakt oss for ytterligere informasjon.

Beregn boliglån

Valutakalkulator

  • Britiske Pund: 330.269 GBP
  • Russiske rubel: 330.269 RUB
  • Sveitsiske Franc: 349.980 CHF
  • Kinesiske yuan: 3.054.402 CNY
  • US Dollar: 448.134 USD
  • Svenske kroner: 4.103.240 SEK
  • Norske kroner : 4.218.380 NOK

Be om informasjon

Responsable del tratamiento: Lundquist & Nielsen SLU, Finalidad del tratamiento: Gestión y control de los servicios ofrecidos a través de la página Web de Servicios inmobiliarios, Envío de información a traves de newsletter y otros, Legitimación: Por consentimiento, Destinatarios: No se cederan los datos, salvo para elaborar contabilidad, Derechos de las personas interesadas: Acceder, rectificar y suprimir los datos, solicitar la portabilidad de los mismos, oponerse altratamiento y solicitar la limitación de éste, Procedencia de los datos: El Propio interesado, Información Adicional: Puede consultarse la información adicional y detallada sobre protección de datos Aquí.
Energisertifisering
Energiklassifisering: X
16