09:00 - 17:00

Nybyggede rekkehus 50 meter fra stranden i La Azohia Cartagena

Ref: R-31420
79m2 <19m2 2 3

Nøkkelinformasjon

Soverom: 2
Baderom: 3
Bygget: 79m2
Tomt: 19m2
Energisertifisering: B

Karakteristikk

Takterrasse: Ja
Air Conditioning: Pre-Installed
Number of Parking Spaces: 1
Near Schools
Location: Coastal
Beach: 50 Meters
Terrace: 28 Msq.
Single Bedrooms: 1, Double Bedrooms: 1
Hage
Parkering
Inngjerdet

Beskrivelse

Nybyggede rekkehus 50 meter fra stranden i La Azohia Cartagena

Eksklusive kystboliger få skritt fra Middelhavet
Oppdag dette svært begrensede nybyggprosjektet med bare to moderne rekkehus som ligger bare 50 meter fra stranden i La Azohia, Cartagena. Denne privilegerte kystbyen på Costa Calida er kjent for sitt krystallklare vann, avslappede atmosfære og uberørte natur. La Azohia er ideelt for de som søker ro ved sjøen, og tilbyr en autentisk middelhavsstil med små viker, restauranter ved sjøen og vakre kyststier.

Moderne planløsning med havutsikt og privat solarium
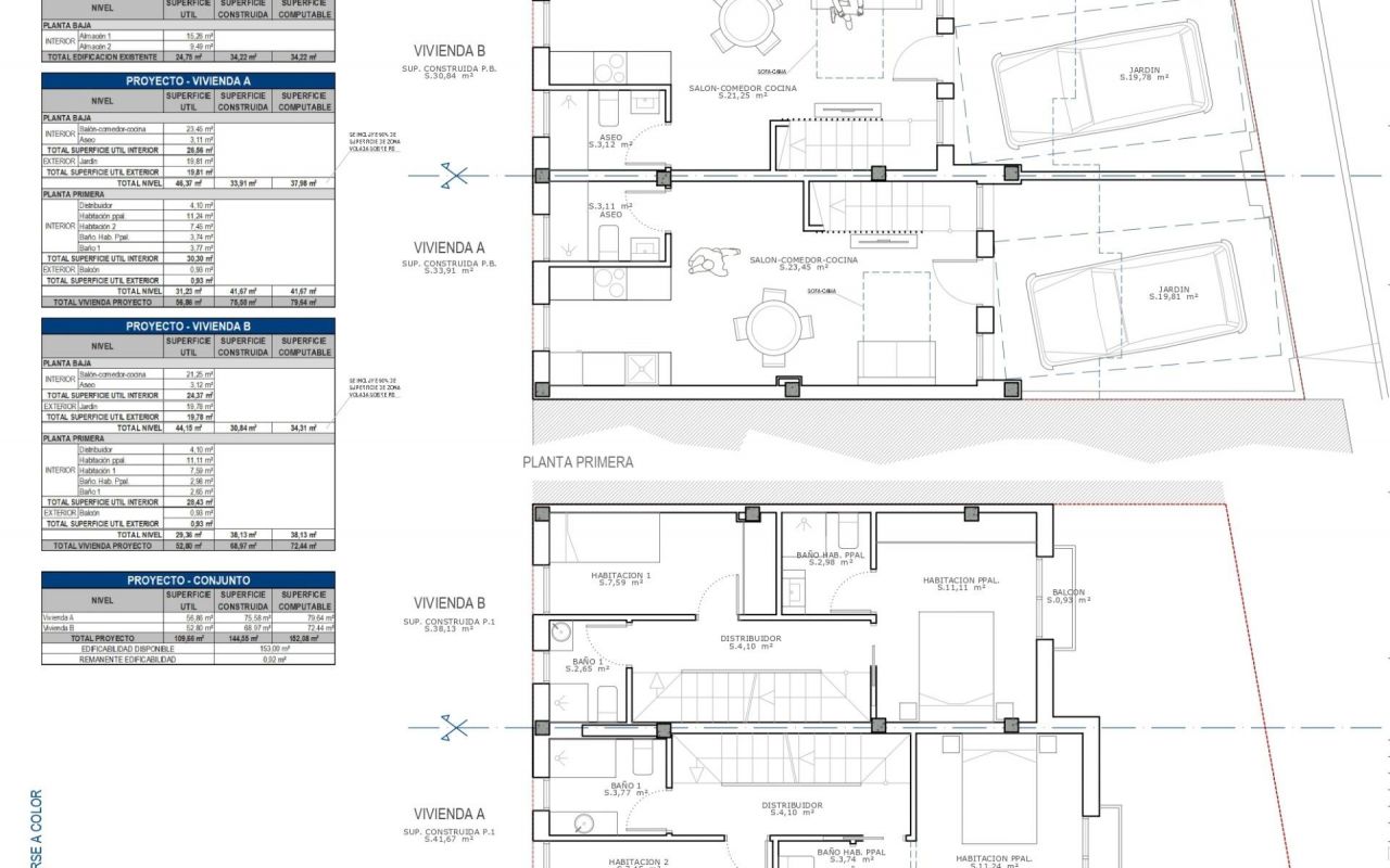
Hvert rekkehus er fordelt på to etasjer pluss et privat solarium på taket med åpen utsikt over Middelhavet. Første etasje har en lys åpen stue/spisestue med kjøkken, designet for å maksimere naturlig lys og komfort. Denne etasjen har også et komplett bad og direkte tilgang til en privat hage. Hageområdet gir fleksibilitet, da det kan brukes til parkering eller oppgraderes med et privat svømmebasseng mot en ekstra kostnad.

I første etasje har soverommet et romslig hovedsoverom med eget bad, et ekstra enkeltrom og et ekstra komplett bad. Den øverste etasjen er dedikert til et privat solarium, et eksepsjonelt sted å nyte utsikten over havet, sole seg hele året eller skape et avslappende område for utendørs liv.

Høy kvalitet og komfort
Disse nybygde rekkehusene er bygget med materialer og overflater av høy kvalitet for å sikre holdbarhet, komfort og moderne stil. Funksjonene inkluderer innebygde garderober i soverommene, forhåndsinstallasjon for kanalisert klimaanlegg og forhåndsinstallasjon for kjøkkenet, slik at kjøpere kan tilpasse rommet etter egen smak. Det moderne designet kombinert med funksjonelle planløsninger gjør disse boligene ideelle som permanent bolig, feriebolig eller investeringseiendom.

Førsteklasses beliggenhet i La Azohia Cartagena
La Azohia er en sjarmerende kystby i kommunen Cartagena, kjent for sitt fredelige miljø, beskyttede havområde og nærhet til naturen. Området tilbyr grunnleggende tjenester, lokale restauranter og enkel tilgang til større byer og fasiliteter, samtidig som det har beholdt sin avslappede sjøkystsjarm.

Viktige avstander til interessante steder
La Azohia-stranden: 50 m
Cartagena sentrum: 25 km
Puerto de Mazarron marina: 20 km
La Manga Club Golf Resort: 35 km
Murcia Corvera flyplass: 45 km
Alicante flyplass: 120 km

Middelhavsstil ved sjøen
Å bo i La Azohia betyr å nyte sol, havutsikt og et roligere tempo hele året. Kombinasjonen av nærhet til stranden, moderne design og begrenset tilgjengelighet gjør dette prosjektet til en unik mulighet på Costa Calida.

Kontakt oss i dag
Ikke gå glipp av sjansen til å eie et nybygget rekkehus bare noen skritt fra havet i La Azohia. Kontakt oss nå for mer informasjon eller for å avtale en visning og sikre deg en av disse eksklusive kystboligene.

Beliggenhet

Økonomi

PRISER er oppgitt EX 10% ITP på bruktbolig og skjøtekostnader / og på nybygg ex 10%IVA og 1,5% AJD og skjøtekostnader- Du kan låne i spanske banker 50- 70% av laveste valør, enten kjøpesummen eller taksten finansieres opp til 30 år, max til lånetager fylte 70 år, renten er Euribor pluss ca 2,5 % i gjennomsnitt. Kontakt oss for ytterligere informasjon.

Beregn boliglån

Valutakalkulator

  • Britiske Pund: 221.123 GBP
  • Russiske rubel: 221.123 RUB
  • Sveitsiske Franc: 235.569 CHF
  • Kinesiske yuan: 2.036.864 CNY
  • US Dollar: 297.840 USD
  • Svenske kroner: 2.766.368 SEK
  • Norske kroner : 2.776.313 NOK

Be om informasjon

Responsable del tratamiento: Lundquist & Nielsen SLU, Finalidad del tratamiento: Gestión y control de los servicios ofrecidos a través de la página Web de Servicios inmobiliarios, Envío de información a traves de newsletter y otros, Legitimación: Por consentimiento, Destinatarios: No se cederan los datos, salvo para elaborar contabilidad, Derechos de las personas interesadas: Acceder, rectificar y suprimir los datos, solicitar la portabilidad de los mismos, oponerse altratamiento y solicitar la limitación de éste, Procedencia de los datos: El Propio interesado, Información Adicional: Puede consultarse la información adicional y detallada sobre protección de datos Aquí.
Energisertifisering
Energiklassifisering: B