09:00 - 17:00

Leilighet · Nybygg Alicante · Torrevieja · Playa de El Cura

Ref: R-59984
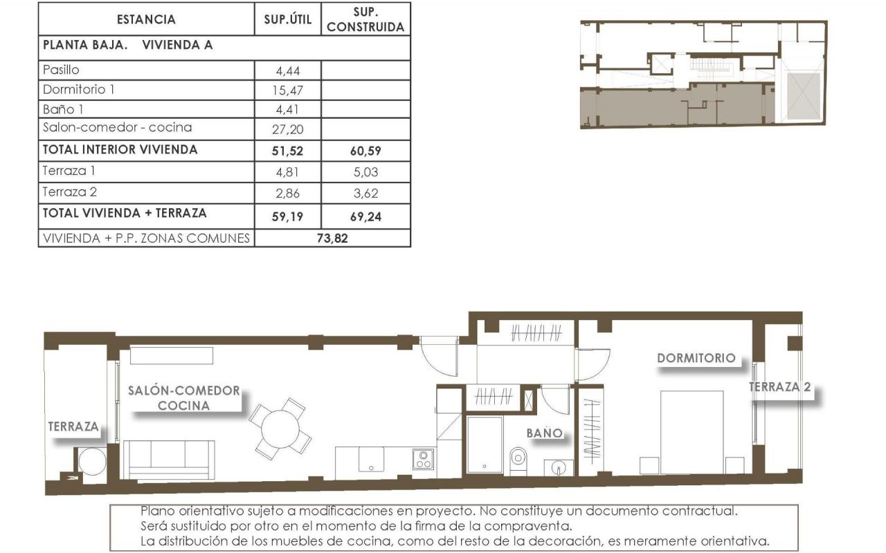
60m2 1 1 Ja

Nøkkelinformasjon

Soverom: 1
Baderom: 1
Bygget: 60m2
Energisertifisering: B

Karakteristikk

Felles basseng
Inngjerdet
Air Conditioning: Pre-Installed
Near Schools
Near Commercial Center
Nær bussforbindelse
Location: Coastal
Elevator/Lift
Near Childrens Parks
Double Bedrooms: 1
Terrace: 7 Msq.
Beach: 150 Meters

Beskrivelse

Moderne nybyggede leiligheter i hjertet av Torrevieja Førsteklasses beliggenhet bare 150 m fra sjøen Dette eksepsjonelle nybygget ligger i sentrum av Torrevieja, bare 150 m fra de naturlige svømmebassengene og strandpromenaden, og bare 500 m fra Playa del Cura. Området er omgitt av et omfattende utvalg av tjenester, inkludert butikker, supermarkeder, parker, kafeer og restauranter, og tilbyr alt du trenger innen kort gangavstand. Kombinasjonen av urbane bekvemmeligheter og kystnær ro gjør dette til et av de mest attraktive boligområdene i byen. Moderne leiligheter med 1 og 2 soverom Utbyggingen tilbyr moderne leiligheter med 1 eller 2 soverom og 1 eller 2 bad, inkludert to eksklusive penthouse-leiligheter med privat solarium, grill og privat basseng. Alle boligene er designet med åpne planløsninger som maksimerer naturlig lys, med romslige terrasser og stilige kjøkken i amerikansk stil. Hver leilighet har et fullt utstyrt kjøkken med hvitevarer, komplette bad med møbler, dusjvegger og gulvvarme, samt innvendig belysning. Det er også forhåndsinstallert for sentral klimaanlegg, som sikrer komfort hele året. Attraktive fellesområder for avslapning Beboerne kan nyte gode fellesfasiliteter designet for velvære og fritid. Første etasje har et forfriskende felles svømmebasseng og en avslappende badstue. Takterrassen har et felles solarium, ideelt for soling og for å nyte middelhavsatmosfæren. Nyt et unikt kyst- og naturområde Torrevieja er kjent for sitt milde middelhavsklima, med en gjennomsnittlig årstemperatur på 20 ºC, perfekt for å bo der hele året. Byen er hjemsted for de berømte saltsjøene og den beskyttede naturparken La Mata og Torrevieja, som ligger bare 4 km fra boligprosjektet. Med sine livlige rosa og grønne laguner, naturskjønne turstier og mangfoldige dyreliv, tilbyr den et sunt og inspirerende naturmiljø. Avstander til viktige severdigheter Puerto Deportivo de Torrevieja 1 km Parque Natural de La Mata 4 km Villamartin Golf 8 km Alicante lufthavn 45 km Murcia lufthavn 60 km Lev middelhavslivet Sikre deg et moderne hjem i en av de mest ettertraktede kystbyene på Costa Blanca. Kontakt oss i dag for å avtale et besøk og reservere din plass i dette enestående nye boligprosjektet.

Beliggenhet

Økonomi

PRISER er oppgitt EX 10% ITP på bruktbolig og skjøtekostnader / og på nybygg ex 10%IVA og 1,5% AJD og skjøtekostnader- Du kan låne i spanske banker 50- 70% av laveste valør, enten kjøpesummen eller taksten finansieres opp til 30 år, max til lånetager fylte 70 år, renten er Euribor pluss ca 2,5 % i gjennomsnitt. Kontakt oss for ytterligere informasjon.

Beregn boliglån

Valutakalkulator

  • Britiske Pund: 203.381 GBP
  • Russiske rubel: 203.381 RUB
  • Sveitsiske Franc: 212.135 CHF
  • Kinesiske yuan: 1.881.340 CNY
  • US Dollar: 273.564 USD
  • Svenske kroner: 2.492.410 SEK
  • Norske kroner : 2.619.545 NOK

Be om informasjon

Responsable del tratamiento: Lundquist & Nielsen SLU, Finalidad del tratamiento: Gestión y control de los servicios ofrecidos a través de la página Web de Servicios inmobiliarios, Envío de información a traves de newsletter y otros, Legitimación: Por consentimiento, Destinatarios: No se cederan los datos, salvo para elaborar contabilidad, Derechos de las personas interesadas: Acceder, rectificar y suprimir los datos, solicitar la portabilidad de los mismos, oponerse altratamiento y solicitar la limitación de éste, Procedencia de los datos: El Propio interesado, Información Adicional: Puede consultarse la información adicional y detallada sobre protección de datos Aquí.
Energisertifisering
Energiklassifisering: B