09:00 - 17:00

Penthouse · Nybygg MURCIA · Torre Pacheco · Santa Rosalia Lake And Life Resort

Ref: R-24916
67m2 2 2 Ja

Nøkkelinformasjon

Soverom: 2
Baderom: 2
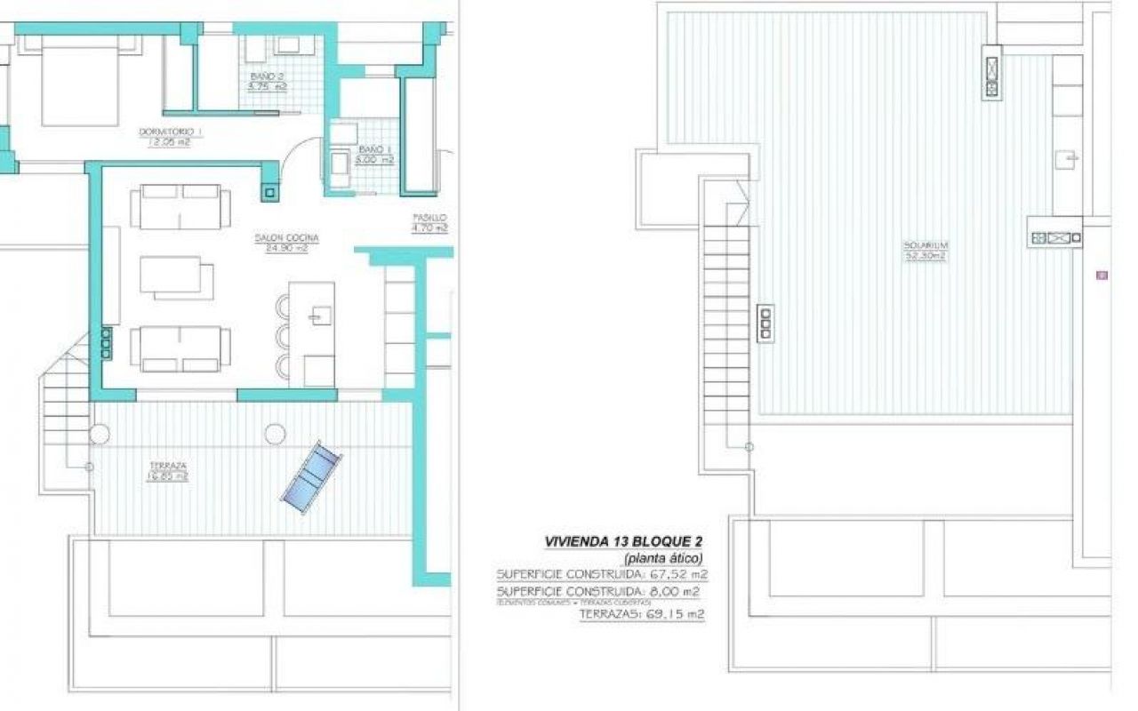
Bygget: 67m2
Energisertifisering: B

Karakteristikk

Parkering
Felles basseng
Inngjerdet
Location: Urbanisation
Air Conditioning: Pre-Installed
Double Bedrooms: 2
Number of Parking Spaces: 1
Near Schools
Elevator/Lift
Beach: 4000 Meters
Terrace: 68 Msq.
Storage / Trastero
Solarium: 52 Msq.

Beskrivelse

NYBYGG BOLIG I PRIVAT GATED RESORT I MURCIA-PROVINSEN Nybygget boligkompleks har 60 leiligheter fordelt på 4 blokker med terrasser for første, første og andre etasje, felles svømmebasseng, oppvarmet svømmebasseng og solarium med sommerkjøkken på toppleilighetene, for å nyte alle soltimer hver dag hele året. Eiendommene har 2 soverom og 2 bad samt parkeringsplass og bod i kjeller. Disse boligene er designet med en moderne stil og åpen planløsning, som består av et fullt utstyrt kjøkken og stue/spisestue. Eiendommene vil oppfylle de høyeste standarder og inkluderer: Kjøkken komplett møblert og utstyrt med stekeovn og mikrobølgeovn i søyle, integrert kjøleskap og oppvaskmaskin, induksjonstopp og avtrekksvifte. LED-belysning: inne i eiendommen (spisestue, kjøkken, korridorer og bad), samt i uteområder. Fôrede garderober med skuffer. Motoriserte persienner på soverom. Gulvvarme på bad. Fullt utstyrt bad med toalett, servantskap, speil, dusj med regneffekt og skjermpaneler. Pre-installasjon for kanalklimaanlegg. Forhåndsinstallasjon av ladepunkt for elbiler. Solarium med sommerkjøkken, med forhåndsinstallasjon for elektriske apparater. Felles svømmebasseng. Oppvarmet svømmebasseng. Parkeringsplass og bod i kjeller. Ligger i et privat inngjerdet feriested, med hovedinngang og 24 timers vakthold. Feriestedet er designet rundt et imponerende grøntområde på 126.000 m2. Den består av gang- og sykkelstier, sportsfasiliteter, padle- og tennisbaner, en minigolfbane, hager, hundeparker, fritidsområder, klubbhus... Også i det sentrale området er juvelen til feriestedet, en krystallklar kunstig innsjø på nesten 17.000m2 vannflate, omgitt av hvite sandstrender og palmetrær, som bringer et stykke av Karibien til Murcia-regionen. Det er 2 øyer i innsjøen, en av dem har sin egen bar, det er også "strand Chiringuitos" spredt rundt innsjøen. Anlegget har en strategisk beliggenhet mindre enn 4 km fra stranden og byen Los Alcázares, hvor du kan utøve ulike vannsporter, omgitt av flere golfbaner og byen Cartagena mindre enn 15 minutter med bil og 22 km fra Murcia flyplass, har derfor et bredt kultur-, gastronomisk- og sportstilbud innen rekkevidde.

Beliggenhet

Økonomi

PRISER er oppgitt EX 10% ITP på bruktbolig og skjøtekostnader / og på nybygg ex 10%IVA og 1,5% AJD og skjøtekostnader- Du kan låne i spanske banker 50- 70% av laveste valør, enten kjøpesummen eller taksten finansieres opp til 30 år, max til lånetager fylte 70 år, renten er Euribor pluss ca 2,5 % i gjennomsnitt. Kontakt oss for ytterligere informasjon.

Beregn boliglån

Valutakalkulator

  • Britiske Pund: 342.504 GBP
  • Russiske rubel: 342.504 RUB
  • Sveitsiske Franc: 362.299 CHF
  • Kinesiske yuan: 3.193.219 CNY
  • US Dollar: 448.518 USD
  • Svenske kroner: 4.274.011 SEK
  • Norske kroner : 4.560.436 NOK

Be om informasjon

Responsable del tratamiento: Lundquist & Nielsen SLU, Finalidad del tratamiento: Gestión y control de los servicios ofrecidos a través de la página Web de Servicios inmobiliarios, Envío de información a traves de newsletter y otros, Legitimación: Por consentimiento, Destinatarios: No se cederan los datos, salvo para elaborar contabilidad, Derechos de las personas interesadas: Acceder, rectificar y suprimir los datos, solicitar la portabilidad de los mismos, oponerse altratamiento y solicitar la limitación de éste, Procedencia de los datos: El Propio interesado, Información Adicional: Puede consultarse la información adicional y detallada sobre protección de datos Aquí.
Energisertifisering
Energiklassifisering: B