09:00 - 17:00

El Coral II, maison mitoyenne de type quad chaleureuse. 2 chambres, solarium et place de parking sur la parcelle.

Réf.: 4-B-Z1048
66m2 <105m2 2 1 Toilettes 1 Piscine communautaire Parking privee

Principales caractéristiques

Chambres: 2
Bain: 1
Construit: 66m2
Intrigue: 105m2
Toilettes: 1
Tipo de cocina: Cuisine indépendante
Armoires encastrées: 2
Énergie: F
Année de construction: 2003
Orientation: Sud
Dépenses de la communauté: 435 €
IBI: 195 €

Les caractéristiques

Air conditionné
Jardin
Clair
Centres commerciaux
Piscine communautaire
Écoles
Meublé
Galerie
Solarium
De coin
Porte de securite

La description

Maison mitoyenne de type quad située à Torrevieja, dans le résidentiel El Coral II, dans un quartier calme et bien desservi. Le bien se trouve à seulement 2,5 km des plages, à 600 mètres de la Laguna Rosa et à environ 40 km de l’aéroport d’Alicante. Un emplacement pratique pour y vivre toute l’année ou pour les vacances.

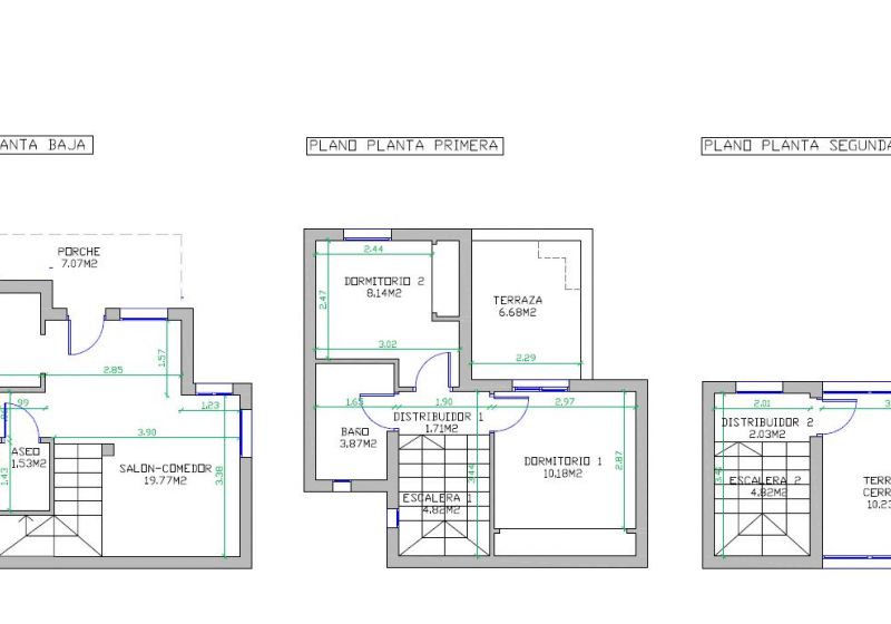
Caractéristiques par étage
À l’entrée, vous trouverez un grand jardin d’angle carrelé avec espace pour garer la voiture, idéal pour profiter de l’extérieur. Le bien bénéficie d’une orientation sud, apportant beaucoup de lumière naturelle et une ambiance chaleureuse toute l’année.

Au rez-de-chaussée, il y a un salon-salle à manger lumineux, une cuisine indépendante équipée, une buanderie ouverte et un WC invités.

À l’étage, il y a deux chambres, dont une avec terrasse privée, et une salle de bain complète.

Le solarium a été fermé et aménagé en troisième chambre ou espace polyvalent. La maison est vendue meublée et prête à emménager.

Environnement et services
Le résidentiel dispose d’une piscine commune et se trouve à proximité de tous les services : supermarchés, écoles, pharmacie, restaurants et installations sportives. À quelques minutes se trouve le Parc de La Siesta, l’un des espaces verts les plus complets de la ville.

De plus, la maison est proche du Centre Commercial Habaneras, avec boutiques, loisirs et cinéma.

Contactez-nous pour plus d’informations ou pour organiser une visite.

Emplacement

Vidéos

Économie

Cette information donnée ici est sujette à des erreurs et ne fait partie d'aucun contrat. L'offre peut être modifiée ou retirée sans préavis. Les prix n'incluent pas les coûts d'achat

Calculer les hypothèques

Échange de devises

  • Livres sterling: 158.511 GBP
  • Rouble russe: 158.511 RUB
  • Franc suisse: 167.445 CHF
  • Yuan chinois: 1.453.020 CNY
  • Dollar: 214.147 USD
  • Couronne suédoise: 1.997.354 SEK
  • La couronne norvégienne: 1.976.034 NOK

Suma/IBI

195€ €

435€ anuales €

Informations requises

Responsable del tratamiento: Lundquist & Nielsen SLU, Finalidad del tratamiento: Gestión y control de los servicios ofrecidos a través de la página Web de Servicios inmobiliarios, Envío de información a traves de newsletter y otros, Legitimación: Por consentimiento, Destinatarios: No se cederan los datos, salvo para elaborar contabilidad, Derechos de las personas interesadas: Acceder, rectificar y suprimir los datos, solicitar la portabilidad de los mismos, oponerse altratamiento y solicitar la limitación de éste, Procedencia de los datos: El Propio interesado, Información Adicional: Puede consultarse la información adicional y detallada sobre protección de datos Aquí.
Énergie
Cote énergétique: F
17