09:00 - 17:00

Ville · Nouvelle construction Alicante · Dolores · Sector 3

Réf.: R-14922
183m2 <256m2 3 2 Oui

Principales caractéristiques

Chambres: 3
Bain: 2
Construit: 183m2
Intrigue: 256m2
Énergie: B

Les caractéristiques

Jardin
Piscine privée
Parking
Gated
Solarium: Yes
Number of Parking Spaces: 1
Near Schools
Near Commercial Center
Double Bedrooms: 3
Terrace: 85 Msq.
Beach: 12000 Meters
Location: Rural
Laundry Room
Toilet: 1

La description

Villas modernes neuves à Dolores, Alicante

Une vie contemporaine au cœur de la Vega Baja
Découvrez ce nouveau programme immobilier exclusif de villas neuves à Dolores, une charmante ville de la région de la Vega Baja del Segura, au sud d'Alicante. Réputée pour son caractère espagnol traditionnel et entourée d'une campagne luxuriante, Dolores offre un cadre de vie paisible tout en proposant toutes les commodités quotidiennes à quelques minutes à pied : commerces, restaurants, écoles et services locaux.

Situé à seulement 12 km des plages de La Marina et Guardamar del Segura, et avec un accès facile à l'autoroute AP-7, ce quartier résidentiel est parfaitement relié aux principales villes côtières de la Costa Blanca.

Élégantes villas modernes avec piscine privée
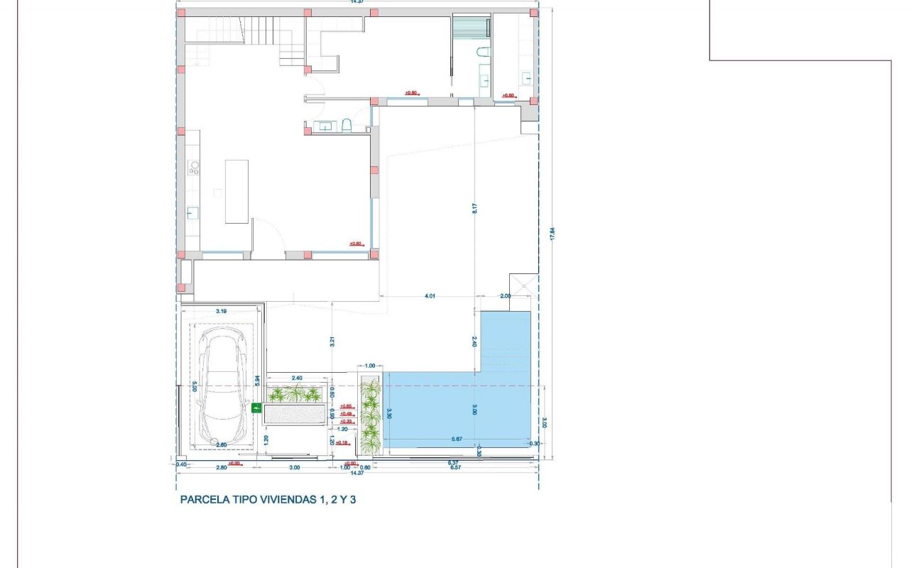
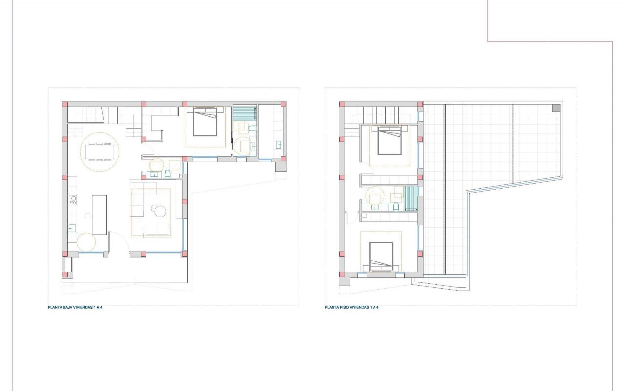
Ces villas modernes de deux étages ont été conçues pour offrir confort, fonctionnalité et style. Au rez-de-chaussée, vous trouverez une cuisine ouverte lumineuse reliée au salon-salle à manger, avec de grandes portes coulissantes s'ouvrant directement sur la terrasse et le jardin privé avec piscine. Le rez-de-chaussée comprend également une chambre avec salle de bains attenante, des toilettes pour invités et un espace buanderie extérieur pratique.

Au premier étage, vous trouverez deux chambres supplémentaires, une salle de bains et un accès à une grande terrasse ouverte de 60 m², parfaite pour prendre le soleil ou se détendre tout en profitant du climat méditerranéen. Chaque maison dispose d'un parking privé à l'intérieur du terrain.

Finitions de qualité et confort moderne
Construites avec des matériaux de haute qualité et un design contemporain, ces villas sont entièrement équipées pour être habitées toute l'année. Les principales caractéristiques sont les suivantes :
Menuiserie extérieure avec rupture de pont thermique
Stores motorisés
Système d'eau chaude alimenté par l'énergie aérothermique
Climatisation centralisée entièrement installée
Piscine privée
Parking privé et jardin paysager

Les intérieurs allient élégance et fonctionnalité, maximisant la lumière naturelle et offrant un cadre de vie exceptionnel avec une forte connexion entre les espaces intérieurs et extérieurs.

Emplacement privilégié à proximité de tout
Dolores bénéficie d'un emplacement stratégique, offrant un équilibre entre tranquillité et accessibilité.
Distances clés :
Plages de La Marina et Guardamar del Segura : 12 km
Aéroport d'Alicante (Elche-El Altet) : 30 km (25 minutes en voiture)
Aéroport de Murcie-Corvera : 70 km (1 heure en voiture)
Parcours de golf : 15 km
Ville d'Alicante : 40 km

Vivez le style de vie méditerranéen à Dolores
Ces villas neuves à Dolores offrent la combinaison parfaite entre design moderne, confort et proximité de la côte. Idéales pour une résidence permanente ou pour les vacances, elles offrent un style de vie méditerranéen serein, entouré par la nature et les commodités.

Contactez-nous dès aujourd'hui pour organiser une visite et faire de votre maison de rêve à Dolores une réalité.

Emplacement

Économie

Cette information donnée ici est sujette à des erreurs et ne fait partie d'aucun contrat. L'offre peut être modifiée ou retirée sans préavis. Les prix n'incluent pas les coûts d'achat

Calculer les hypothèques

Échange de devises

  • Livres sterling: 403.225 GBP
  • Rouble russe: 403.225 RUB
  • Franc suisse: 429.567 CHF
  • Yuan chinois: 3.714.281 CNY
  • Dollar: 543.120 USD
  • Couronne suédoise: 5.044.553 SEK
  • La couronne norvégienne: 5.062.688 NOK

Informations requises

Responsable del tratamiento: Lundquist & Nielsen SLU, Finalidad del tratamiento: Gestión y control de los servicios ofrecidos a través de la página Web de Servicios inmobiliarios, Envío de información a traves de newsletter y otros, Legitimación: Por consentimiento, Destinatarios: No se cederan los datos, salvo para elaborar contabilidad, Derechos de las personas interesadas: Acceder, rectificar y suprimir los datos, solicitar la portabilidad de los mismos, oponerse altratamiento y solicitar la limitación de éste, Procedencia de los datos: El Propio interesado, Información Adicional: Puede consultarse la información adicional y detallada sobre protección de datos Aquí.
Énergie
Cote énergétique: B
16