09:00 - 17:00

Bungalow · Obra Nueva Alicante · Pilar de la Horadada · pueblo

Ref.: R-26524
93m2 2 2

Características clave

Dormitorios: 2
Baños: 2
Construidos: 93m2
Calificación energética: B

Otras características

Parking
Gated
Solarium: Yes
Air Conditioning: Pre-Installed
Double Bedrooms: 2
Number of Parking Spaces: 1
Near Schools
Near Commercial Center
Location: Coastal, Urbanisation
Beach: 3000 Meters
Near Bus Route
Terrace: 96 Msq.
Laundry Room

Descripción

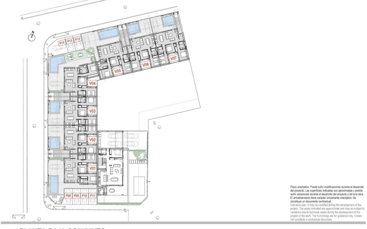
Bungalows de nueva construcción en venta en Pilar de la Horadada, a 3 km de la playa Complejo residencial boutique en Pilar de la Horadada Descubra este exclusivo complejo residencial de nueva construcción con modernos bungalows situado en Pilar de la Horadada, la localidad más meridional de la Costa Blanca. Este proyecto boutique consta de solo 14 viviendas cuidadosamente diseñadas con 2 o 3 dormitorios y 2 baños, que ofrecen una combinación ideal de comodidad, estilo y estilo de vida mediterráneo. La urbanización está situada en una tranquila zona residencial a poca distancia del centro de la ciudad, lo que permite a los residentes disfrutar de un fácil acceso a tiendas, restaurantes, supermercados y servicios esenciales. Pilar de la Horadada es conocida por su ambiente acogedor, su encanto tradicional español y su animada calle principal llena de cafeterías, boutiques y encantadoras plazas. Bungalows modernos con espacios exteriores privados Las viviendas han sido diseñadas para ofrecer interiores luminosos y distribuciones funcionales, perfectas tanto para vivir de forma permanente como para pasar las vacaciones. Los bungalows de la planta baja cuentan con jardín privado y piscina privada, creando el entorno perfecto para disfrutar de la vida al aire libre, tomar el sol o recibir a familiares y amigos. Los bungalows de la planta superior incluyen una amplia terraza y un solárium privado en la azotea. El solárium cuenta con una cocina de verano y ofrece la opción de añadir una piscina privada o un jacuzzi con un coste adicional, lo que lo convierte en un espacio ideal para relajarse mientras se disfruta del cálido clima mediterráneo y de las vistas panorámicas. Cada propiedad incluye una plaza de aparcamiento privada dentro del complejo residencial para mayor comodidad. Construcción de calidad y características modernas Estas viviendas de nueva construcción están construidas con materiales de calidad e instalaciones modernas diseñadas para garantizar el confort y la eficiencia energética durante todo el año. Carpintería exterior de aluminio con rotura de puente térmico Cocinas totalmente equipadas con electrodomésticos incluidos Baños equipados con espejos y mamparas de ducha Iluminación LED interior y exterior Sistema de agua caliente con tecnología aerotérmica de alta eficiencia energética Preinstalación para aire acondicionado por conductos La combinación de diseño moderno y características prácticas hace que estas viviendas sean una excelente opción para los compradores que buscan una propiedad contemporánea en la Costa Blanca. Excelente ubicación cerca de playas y campos de golf Pilar de la Horadada goza de una ubicación estratégica cerca de algunas de las mejores playas y campos de golf de la región. Playa de Torre de la Horadada a 3 km Playa de Mil Palmeras a 3 km Campo de golf Lo Romero a 6 km Aeropuerto Internacional de la Región de Murcia a 45 km Aeropuerto de Alicante-Elche a 75 km La zona también ofrece excelentes conexiones por carretera con las localidades costeras cercanas, los puertos deportivos y las instalaciones de ocio, lo que la convierte en una base perfecta para explorar la Costa Blanca y la Costa Cálida. Encuentre su nuevo hogar en la Costa Blanca Si busca un bungalow moderno de nueva construcción cerca de la playa, con excelentes servicios y una ubicación fantástica, esta promoción residencial en Pilar de la Horadada es una oportunidad excepcional. Póngase en contacto con nosotros hoy mismo para obtener más información o concertar una visita.

Localización

Economía

Esta información que se proporciona aquí está sujeta a errores y no forma parte de ningún contrato. La oferta se puede cambiar o retirar sin previo aviso. Los precios no incluyen los gastos de compra, ni notaria, registro IVA/ITP/AJD

Calcular hipoteca

Cambio de divisas

  • Libras: 321.439 GBP
  • Rublo Ruso: 321.439 RUB
  • Franco Suizo: 341.049 CHF
  • Yuan Chino: 2.969.598 CNY
  • Dolar: 435.345 USD
  • Corona Sueca: 3.992.078 SEK
  • Corona Noruega: 4.082.236 NOK

Solicitar información

Responsable del tratamiento: Lundquist & Nielsen SLU, Finalidad del tratamiento: Gestión y control de los servicios ofrecidos a través de la página Web de Servicios inmobiliarios, Envío de información a traves de newsletter y otros, Legitimación: Por consentimiento, Destinatarios: No se cederan los datos, salvo para elaborar contabilidad, Derechos de las personas interesadas: Acceder, rectificar y suprimir los datos, solicitar la portabilidad de los mismos, oponerse altratamiento y solicitar la limitación de éste, Procedencia de los datos: El Propio interesado, Información Adicional: Puede consultarse la información adicional y detallada sobre protección de datos Aquí.
Calificación energética
Calificación energética: B