09:00 - 17:00

Bungalow · Obra Nueva MURCIA · San Javier · pueblo

Ref.: R-51735
74m2 <20m2 2 2

Características clave

Dormitorios: 2
Baños: 2
Construidos: 74m2
Parcela: 20m2
Calificación energética: B

Otras características

BBQ
Terrace: 87 Msq.
Parking
Communal Pool
Gated
Solarium: Yes
Air Conditioning: Pre-Installed
Double Bedrooms: 2
Number of Parking Spaces: 1
Near Schools
Near Commercial Center
Location: Coastal, Urbanisation
Near Bus Route
Beach: 3500 Meters
Near Trees

Descripción

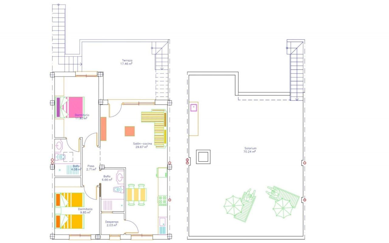
Modernos apartamentos y áticos con solárium en San Javier, cerca del Mar Menor Ubicación privilegiada en San Javier, cerca de la playa Esta nueva promoción residencial de 16 modernas viviendas está situada en la animada localidad de San Javier, Murcia, a solo 3,5 km de las tranquilas aguas del Mar Menor. La zona es conocida por su clima soleado durante todo el año, su relajado estilo de vida costero y sus excelentes servicios. A poca distancia a pie encontrará supermercados, restaurantes, instalaciones deportivas y servicios cotidianos, lo que lo convierte en un lugar ideal tanto para vivir como para pasar las vacaciones. La costa mediterránea está a solo 10 minutos en coche y ofrece una gran variedad de playas y paseos marítimos. Elección entre plantas bajas con jardín o plantas superiores con solárium privado Los compradores pueden elegir entre viviendas en planta baja con 3 dormitorios y 2 baños, uno de ellos en suite, con terraza delantera y jardín trasero privado con cocina de verano. Por otra parte, las propiedades de la planta superior ofrecen 2 dormitorios y 2 baños, también con uno en suite, una terraza delantera y un gran solárium privado con cocina de verano, perfecto para disfrutar del sol durante todo el año. Cada distribución ha sido cuidadosamente diseñada para maximizar la vida al aire libre y la luz natural. Atractivas zonas comunes para relajarse El complejo residencial incluye una zona común con bonitos jardines, piscina con zona de jacuzzi, aparcamiento para bicicletas y zonas verdes donde los residentes pueden relajarse y socializar en un entorno tranquilo. Características de calidad diseñadas para el confort moderno Cada propiedad está construida con altos estándares de confort y eficiencia energética. La carpintería exterior en PVC antracita con rotura de puente térmico y doble acristalamiento proporciona un excelente aislamiento y protección solar. Las cocinas están totalmente equipadas con electrodomésticos. Las viviendas incluyen preinstalación para aire acondicionado por conductos y un sistema aerotérmico para el agua caliente, lo que garantiza un menor consumo energético. Los baños se entregan con mueble de lavabo, espejo y mampara de ducha. Cada vivienda incluye también una plaza de aparcamiento asignada. Excelente conectividad y puntos de interés cercanos San Javier ofrece excelentes conexiones por carretera y fácil acceso a los principales destinos de la región. Playas del Mar Menor a 3,5 km Playas del Mediterráneo a 10 km Roda Golf y Mar Menor Golf a 8 km Puerto deportivo de Los Alcázares a 7 km Aeropuerto de Murcia Corvera a 30 km Aeropuerto de Alicante a 75 km Centro comercial Zenia Boulevard a 30 km Disfrute del estilo de vida mediterráneo en San Javier Esta promoción ofrece la combinación perfecta de ubicación, comodidad y vida al aire libre cerca del mar y de los campos de golf. Póngase en contacto con nosotros hoy mismo para obtener más información o concertar una visita a su futura vivienda en San Javier.

Localización

Economía

Esta información que se proporciona aquí está sujeta a errores y no forma parte de ningún contrato. La oferta se puede cambiar o retirar sin previo aviso. Los precios no incluyen los gastos de compra, ni notaria, registro IVA/ITP/AJD

Calcular hipoteca

Cambio de divisas

  • Libras: 237.478 GBP
  • Rublo Ruso: 237.478 RUB
  • Franco Suizo: 249.540 CHF
  • Yuan Chino: 2.161.614 CNY
  • Dolar: 317.874 USD
  • Corona Sueca: 2.987.300 SEK
  • Corona Noruega: 2.947.456 NOK

Solicitar información

Responsable del tratamiento: Lundquist & Nielsen SLU, Finalidad del tratamiento: Gestión y control de los servicios ofrecidos a través de la página Web de Servicios inmobiliarios, Envío de información a traves de newsletter y otros, Legitimación: Por consentimiento, Destinatarios: No se cederan los datos, salvo para elaborar contabilidad, Derechos de las personas interesadas: Acceder, rectificar y suprimir los datos, solicitar la portabilidad de los mismos, oponerse altratamiento y solicitar la limitación de éste, Procedencia de los datos: El Propio interesado, Información Adicional: Puede consultarse la información adicional y detallada sobre protección de datos Aquí.
Calificación energética
Calificación energética: B