09:00 - 17:00

Villas modernas de nueva construcción en La Herrada Los Montesinos con piscina privada

Ref.: R-39898
110m2 <185m2 3 3

Características clave

Dormitorios: 3
Baños: 3
Construidos: 110m2
Parcela: 185m2
Calificación energética: B

Otras características

Jardín
Piscina privada
Parking
Gated
Air Conditioning: Pre-Installed
Number of Parking Spaces: 1
Near Schools
Double Bedrooms: 3
Beach: 9000 Meters
Location: Rural, Urbanisation
Laundry Room
Terrace: 118 Msq.

Descripción

Exclusivo proyecto residencial en un entorno tranquilo
Situada en la prestigiosa urbanización La Herrada, en Los Montesinos, esta exclusiva promoción de 16 modernas villas ofrece privacidad, comodidad y una excelente calidad de vida. La Herrada es conocida por su tranquilo ambiente residencial, su proximidad a los servicios cotidianos y su privilegiada ubicación entre las famosas salinas de Torrevieja y La Mata. Es un lugar ideal para aquellos que buscan un estilo de vida mediterráneo relajado y saludable en el sur de la Costa Blanca.

Diseño contemporáneo con espacios interiores optimizados
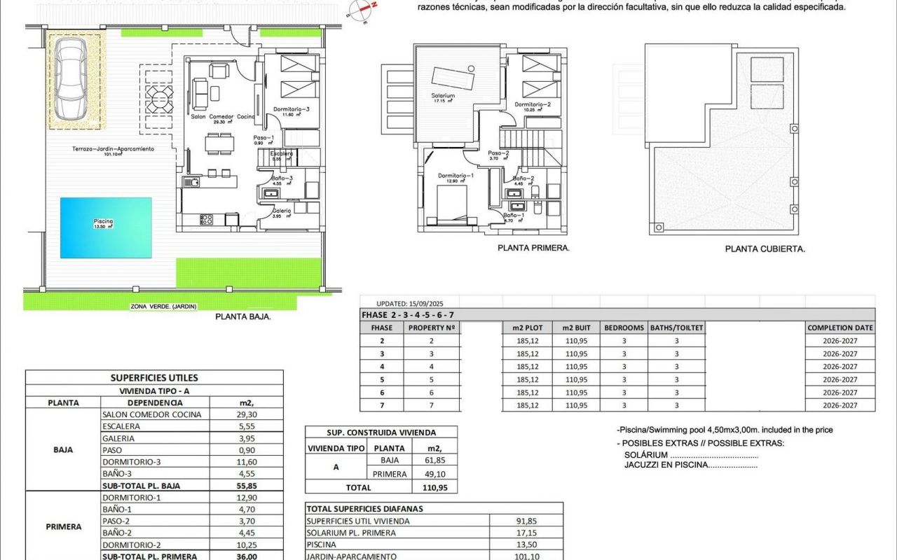
Cada villa tiene 110 m² de superficie habitable bien distribuida en dos plantas, diseñadas para maximizar la luz natural y la funcionalidad. Construidas en parcelas a partir de 185 m², las propiedades ofrecen amplias zonas exteriores perfectas para tomar el sol, divertirse o relajarse junto a la piscina privada.

Cómoda distribución en dos plantas
La planta baja cuenta con un salón diáfano con cocina totalmente integrada y acceso directo al jardín y a la zona de la piscina. Esta planta también incluye un dormitorio, un cuarto de baño completo y un práctico lavadero.
En la planta superior hay dos amplios dormitorios, cada uno con su propio cuarto de baño, uno de ellos en suite. Ambos dormitorios tienen acceso a una terraza privada abierta de 17 m². Para aquellos que deseen aún más espacio exterior, hay un solárium opcional en la azotea disponible con un coste adicional.

Acabados de alta calidad y características modernas
Las villas incluyen acabados de calidad, como muebles de baño, espejos, mamparas de ducha y calefacción por suelo radiante en todos los cuartos de baño. Hay preinstalación para aire acondicionado por conductos, puerta de entrada motorizada para vehículos, aparcamiento privado en la parcela y acceso residencial cerrado a través de una calle interna privada.

Ubicación privilegiada cerca de los principales servicios y atracciones
Playas de Guardamar y Torrevieja a 9 km
La Marquesa Golf, La Finca Golf y Vistabella Golf a menos de 5 km
Aeropuerto de Alicante a 29 km
Parques naturales, salinas, rutas ciclistas y senderos para hacer senderismo en las inmediaciones

Viva cómodamente en el corazón de la Costa Blanca
Estas villas de nueva construcción en Los Montesinos ofrecen la combinación perfecta de comodidad moderna, entorno natural y excelente accesibilidad. Tanto si busca una residencia permanente como una casa de vacaciones, esta promoción le ofrece todo lo que necesita para disfrutar de un estilo de vida mediterráneo tranquilo y cómodo. Póngase en contacto con nosotros hoy mismo para concertar una visita y asegurarse su nueva vivienda en La Herrada.

Localización

Economía

Esta información que se proporciona aquí está sujeta a errores y no forma parte de ningún contrato. La oferta se puede cambiar o retirar sin previo aviso. Los precios no incluyen los gastos de compra, ni notaria, registro IVA/ITP/AJD

Calcular hipoteca

Cambio de divisas

  • Libras: 320.709 GBP
  • Rublo Ruso: 320.709 RUB
  • Franco Suizo: 339.849 CHF
  • Yuan Chino: 2.965.985 CNY
  • Dolar: 435.162 USD
  • Corona Sueca: 3.984.462 SEK
  • Corona Noruega: 4.096.269 NOK

Solicitar información

Responsable del tratamiento: Lundquist & Nielsen SLU, Finalidad del tratamiento: Gestión y control de los servicios ofrecidos a través de la página Web de Servicios inmobiliarios, Envío de información a traves de newsletter y otros, Legitimación: Por consentimiento, Destinatarios: No se cederan los datos, salvo para elaborar contabilidad, Derechos de las personas interesadas: Acceder, rectificar y suprimir los datos, solicitar la portabilidad de los mismos, oponerse altratamiento y solicitar la limitación de éste, Procedencia de los datos: El Propio interesado, Información Adicional: Puede consultarse la información adicional y detallada sobre protección de datos Aquí.
Calificación energética
Calificación energética: B
16