09:00 - 17:00

Villa · Obra Nueva Alicante · Rojales · Ciudad Quesada

Ref.: R-64401
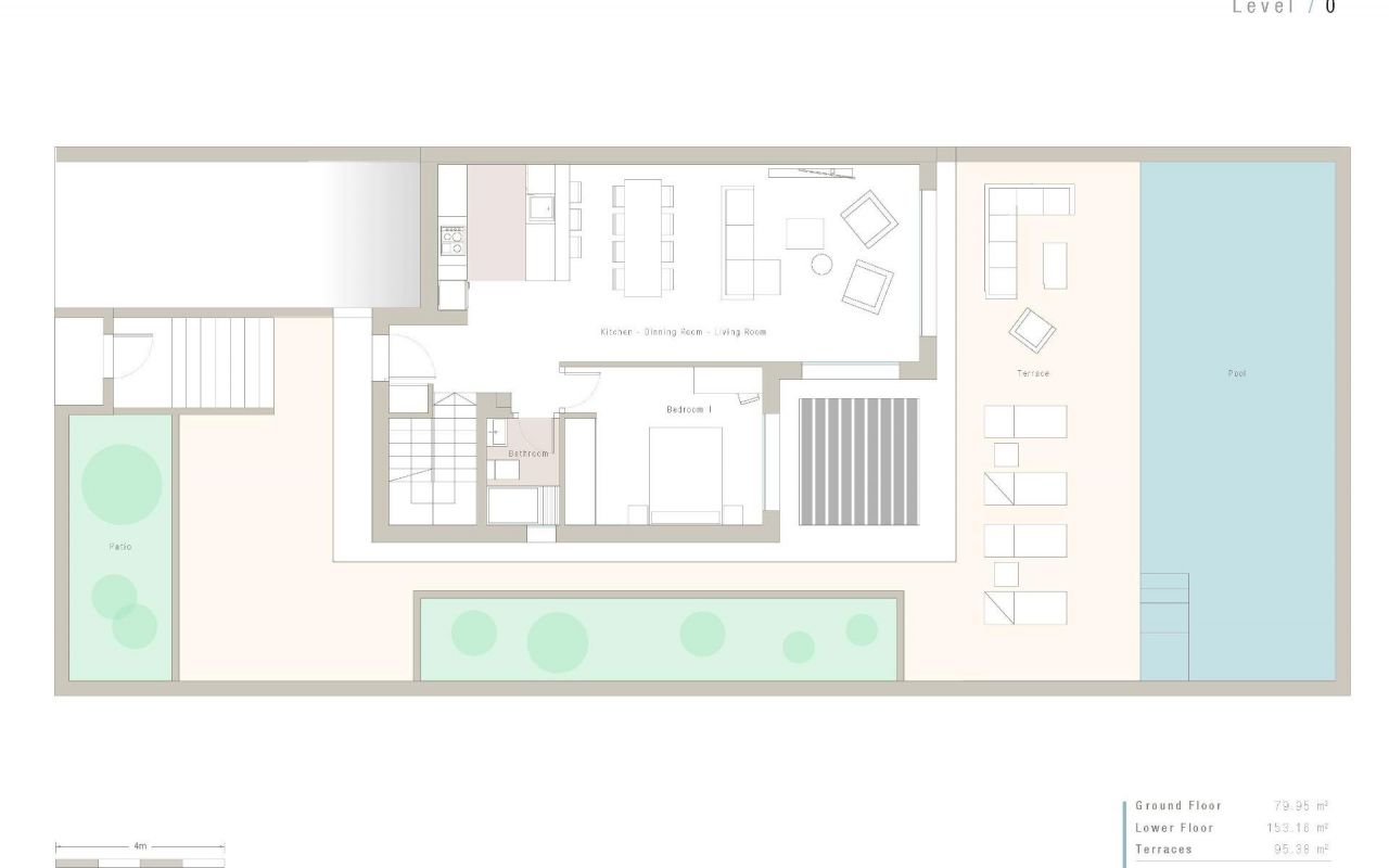
245m2 <300m2 5 3

Características clave

Dormitorios: 5
Baños: 3
Construidos: 245m2
Parcela: 300m2
Calificación energética: B

Otras características

Piscina privada
Parking
Gated
Location: Urbanisation
Under-Build / Basement
Number of Parking Spaces: 1
Near Golf / Golf Resort Property
Near Schools
Near Commercial Center
Key Ready
Terrace: 95 Msq.
Beach: 6000 Meters
Double Bedrooms: 5
Laundry Room
Storage / Trastero
Jardín

Descripción

Moderna villa de lujo con vistas a la montaña en Ciudad Quesada, Costa Blanca Diseño contemporáneo y comodidad excepcional Descubra esta elegante villa de nueva construcción en Ciudad Quesada, una de las zonas residenciales más codiciadas de la Costa Blanca. Situada en una parcela de 300 m² con un precioso jardín y una piscina privada de 4x10 m, esta villa ofrece la combinación perfecta de arquitectura moderna, belleza natural y comodidad mediterránea. La propiedad cuenta con 245 m² de espacio interior distribuidos en dos niveles, diseñados para maximizar la luz, el espacio y la funcionalidad. Los grandes ventanales inundan las zonas de estar con luz natural y ofrecen unas vistas impresionantes de las montañas y la naturaleza circundante. Distribución espaciosa con opciones de vida flexibles La villa cuenta con 4 dormitorios, con la posibilidad de crear un quinto dormitorio o una sala de estar adicional, adaptándose perfectamente a su estilo de vida. En la planta principal, encontrará una sala de estar y un comedor de planta abierta conectados a una moderna cocina totalmente equipada con electrodomésticos de alta gama, creando un flujo continuo hacia la terraza y la zona de la piscina, ideal para entretenerse o relajarse al aire libre. En el nivel inferior (sótano), los dormitorios restantes ofrecen un ambiente fresco y tranquilo, con acceso directo al jardín. La propiedad también incluye un garaje cerrado, zona de lavandería y acabados de alta calidad en todas partes. Acabados de alta gama y características sostenibles Cada detalle de esta villa ha sido cuidadosamente diseñado para ofrecer comodidad y eficiencia. Incluye: Cocina totalmente equipada con electrodomésticos integrados Baños con muebles, mamparas de ducha y toalleros eléctricos Aire acondicionado por conductos (totalmente instalado) Puerta de entrada blindada para máxima seguridad Ubicación privilegiada en Ciudad Quesada Ubicada en una zona exclusiva y tranquila, esta villa goza de una ubicación inmejorable cerca de todo. El campo de golf La Marquesa está a solo 1 km, lo que lo convierte en un paraíso para los amantes del golf. Las playas con bandera azul de Guardamar del Segura están a solo 6 km, mientras que Torrevieja y Orihuela Costa se encuentran a menos de 15 minutos. El aeropuerto internacional de Alicante está a unos 40 km (35 minutos), lo que garantiza una excelente conectividad. Experimente el estilo de vida mediterráneo Rodeada de naranjales, clubes deportivos, restaurantes y todos los servicios esenciales, Ciudad Quesada ofrece un entorno vibrante y a la vez tranquilo. Es el lugar ideal para aquellos que buscan una vivienda de lujo bajo el sol, perfecta como residencia permanente, refugio vacacional o propiedad de inversión. Póngase en contacto con nosotros hoy mismo para concertar una visita y experimentar lo mejor de la vida mediterránea en su nueva casa en Ciudad Quesada.

Localización

Economía

Esta información que se proporciona aquí está sujeta a errores y no forma parte de ningún contrato. La oferta se puede cambiar o retirar sin previo aviso. Los precios no incluyen los gastos de compra, ni notaria, registro IVA/ITP/AJD

Calcular hipoteca

Cambio de divisas

  • Libras: 606.963 GBP
  • Rublo Ruso: 606.963 RUB
  • Franco Suizo: 651.677 CHF
  • Yuan Chino: 5.704.992 CNY
  • Dolar: 818.148 USD
  • Corona Sueca: 7.487.885 SEK
  • Corona Noruega: 8.218.214 NOK

Solicitar información

Responsable del tratamiento: Lundquist & Nielsen SLU, Finalidad del tratamiento: Gestión y control de los servicios ofrecidos a través de la página Web de Servicios inmobiliarios, Envío de información a traves de newsletter y otros, Legitimación: Por consentimiento, Destinatarios: No se cederan los datos, salvo para elaborar contabilidad, Derechos de las personas interesadas: Acceder, rectificar y suprimir los datos, solicitar la portabilidad de los mismos, oponerse altratamiento y solicitar la limitación de éste, Procedencia de los datos: El Propio interesado, Información Adicional: Puede consultarse la información adicional y detallada sobre protección de datos Aquí.
Calificación energética
Calificación energética: B