09:00 - 17:00

Villa · Obra Nueva MURCIA · Puerto de mazarron · El Alamillo

Ref.: R-18251
182m2 <259m2 3 3

Características clave

Dormitorios: 3
Baños: 3
Construidos: 182m2
Parcela: 259m2
Calificación energética: A

Otras características

Location: Coastal, Urbanisation
Double Bedrooms: 3
Near Bus Route
Terrace: 56 Msq.
Views: Sea
BBQ
Number of Parking Spaces: 2
First Line to the Sea
Beach: 20 Meters
Storage / Trastero
Jardín
Piscina privada
Parking
Jacuzzi
Gated
Solarium: Yes
Under-Build / Basement
Near Schools
Near Commercial Center

Descripción

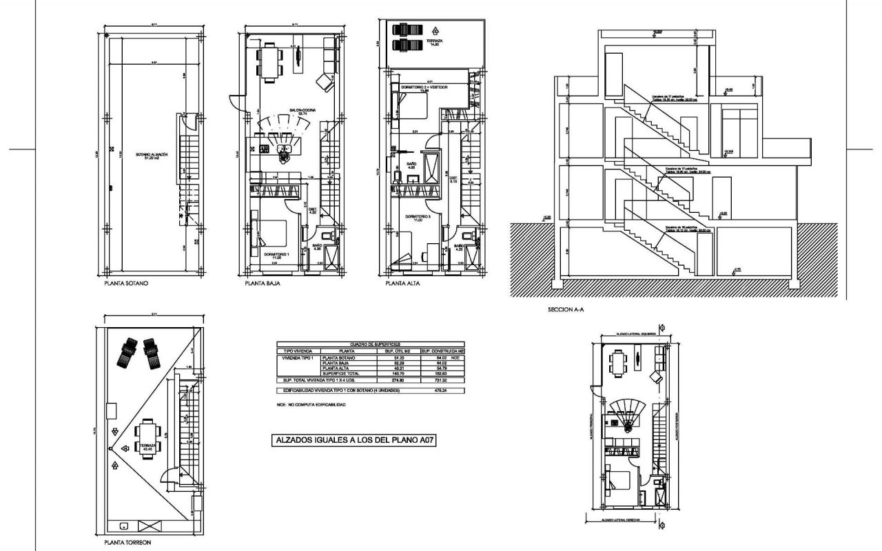
Villas de lujo de nueva construcción en primera línea de playa en Puerto de Mazarrón Vida exclusiva frente al mar en El Alamillo Descubra una nueva promoción única de 11 villas independientes de lujo situadas en Puerto de Mazarrón, en la prestigiosa zona de El Alamillo, uno de los destinos más codiciados de la Costa Cálida. Esta comunidad cerrada ofrece acceso directo a la playa y al paseo marítimo, proporcionando la combinación perfecta de comodidad, exclusividad y estilo de vida mediterráneo. Amplias villas con piscinas privadas y vistas al mar Cada villa se encuentra en parcelas a partir de 259 m2 y está diseñada con una arquitectura moderna en cuatro niveles: sótano, planta baja, primera planta y solárium privado. Las viviendas cuentan con 3 amplios dormitorios y 3 baños (incluido uno en suite), lo que las hace ideales tanto como residencias permanentes como para pasar las vacaciones. Las características principales incluyen: Piscina privada de 8 x 3,5 m Solárium en la azotea con jacuzzi de 2 x 2 m, cocina de verano y vistas al mar Sótanos totalmente acabados de 51,20 m2 con instalación eléctrica y suministro de agua, perfectos para un apartamento de invitados o trastero. Cocinas totalmente equipadas con electrodomésticos Baños completos con acabados de alta calidad Aire acondicionado por conductos (frío/calor) Sistema de agua caliente aerotérmica Cocina de verano al aire libre junto a la piscina Preinstalación para la recarga de coches eléctricos Ubicación privilegiada en la Costa Cálida El Alamillo, en Puerto de Mazarrón, es conocido por su ambiente relajado junto al mar, sus playas de arena y sus excelentes servicios. Las villas se encuentran a pocos pasos del paseo marítimo, lo que permite disfrutar a diario del estilo de vida mediterráneo. Distancias a puntos de interés clave: Centro de Mazarrón: 4 km Cartagena: 35 km Ciudad de Murcia: 70 km Aeropuerto Internacional de Murcia (Corvera): 40 km Aeropuerto de Alicante: 135 km Campos de golf (Camposol, Hacienda del Álamo y otros): 20-30 km Puerto deportivo y zona portuaria de Mazarrón: 2 km Entrega y oportunidad de inversión Con la entrega prevista para el verano de 2026, este proyecto representa una oportunidad única para adquirir una villa en primera línea de playa en una ubicación privilegiada con un alto potencial de alquiler y valor a largo plazo. Asegúrese hoy mismo la villa de sus sueños Disfrute del equilibrio perfecto entre el diseño moderno, el confort y la belleza del mar Mediterráneo. No se pierda esta oportunidad única de vivir directamente en la playa de Puerto de Mazarrón. Póngase en contacto con nosotros hoy mismo para concertar una visita y reservar su nueva villa de lujo junto al mar.

Localización

Economía

Esta información que se proporciona aquí está sujeta a errores y no forma parte de ningún contrato. La oferta se puede cambiar o retirar sin previo aviso. Los precios no incluyen los gastos de compra, ni notaria, registro IVA/ITP/AJD

Calcular hipoteca

Cambio de divisas

  • Libras: 872.317 GBP
  • Rublo Ruso: 872.317 RUB
  • Franco Suizo: 928.634 CHF
  • Yuan Chino: 8.234.521 CNY
  • Dolar: 1.167.235 USD
  • Corona Sueca: 10.832.068 SEK
  • Corona Noruega: 11.796.720 NOK

Solicitar información

Responsable del tratamiento: Lundquist & Nielsen SLU, Finalidad del tratamiento: Gestión y control de los servicios ofrecidos a través de la página Web de Servicios inmobiliarios, Envío de información a traves de newsletter y otros, Legitimación: Por consentimiento, Destinatarios: No se cederan los datos, salvo para elaborar contabilidad, Derechos de las personas interesadas: Acceder, rectificar y suprimir los datos, solicitar la portabilidad de los mismos, oponerse altratamiento y solicitar la limitación de éste, Procedencia de los datos: El Propio interesado, Información Adicional: Puede consultarse la información adicional y detallada sobre protección de datos Aquí.
Calificación energética
Calificación energética: A