09:00 - 17:00

Villa · Obra Nueva MURCIA · Los Alcázares · La Concha

Ref.: R-67064
117m2 <139m2 3 2

Características clave

Dormitorios: 3
Baños: 2
Construidos: 117m2
Parcela: 139m2
Calificación energética: B

Otras características

Air Conditioning: Pre-Installed
Number of Parking Spaces: 1
Near Schools
Near Commercial Center
Double Bedrooms: 3
Near Bus Route
Beach: 700 Meters
Location: Coastal
Terrace: 61 Msq.
Jardín
Piscina privada
Parking
Gated
Solarium: Yes

Descripción

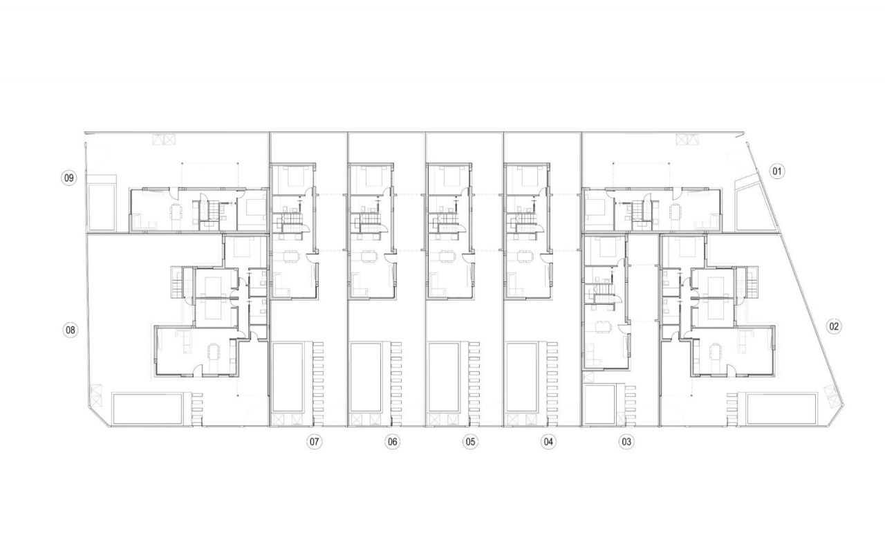
Villas de Obra Nueva con Piscina Privada en Los Alcázares, Costa Cálida Exclusivas Villas Modernas a Solo 700 Metros del Mar Descubre este exclusivo residencial de 9 villas de obra nueva en Los Alcázares, una de las localidades más valoradas de la Costa Cálida por su cercanía al mar, su ambiente relajado y su excelente oferta de servicios. Cada villa cuenta con piscina privada, garaje cubierto independiente, y ha sido diseñada para ofrecer confort, funcionalidad y estilo contemporáneo. Diseño Dúplex con Solárium y Orientación Ideal Las viviendas se distribuyen en dos plantas y cuentan con 3 dormitorios y 2 baños, cocina de estilo abierto completamente equipada, amplio salón comedor, terraza y jardín en planta baja, terraza en planta primera y solárium privado en planta cubierta con cocina de verano. Gracias a sus diferentes orientaciones, permiten aprovechar el sol durante todo el día, todo el año. Equipamiento de Alta Calidad Estas villas están diseñadas con materiales de primera calidad y ofrecen: Piscina privada con ducha exterior Cocina equipada con electrodomésticos: frigorífico, horno elevado, microondas empotrado, vitrocerámica, campana extractora y lavavajillas integrado Armarios empotrados forrados con cajoneras Baños completos con mueble, espejo con luz y mamparas de ducha Preinstalación de aire acondicionado Instalación de 2 paneles solares Cocina de verano en el solárium Plaza de garaje cubierta en parcela Ubicación Inmejorable en la Costa Cálida Situadas a solo 700 metros de las playas del Mar Menor, estas viviendas permiten disfrutar de un entorno natural único con aguas tranquilas y cálidas. Los Alcázares combina un estilo de vida relajado con todos los servicios a mano: supermercados, restaurantes, instalaciones deportivas y centros de salud. Ideal tanto para residencia habitual como para vacaciones. Distancias a Puntos de Interés Playa del Mar Menor: 0.7 km Campos de golf (Roda, La Serena, Mar Menor Golf): entre 3 y 10 km Aeropuerto Internacional de Murcia: 30 km Cartagena: 22 km Centro comercial Dos Mares: 13 km Puerto deportivo de Los Alcázares: 2 km Tu Refugio de Sol y Tranquilidad en el Mediterráneo Estas villas ofrecen la combinación perfecta entre diseño moderno, privacidad, confort y una ubicación privilegiada. Contacta con nosotros hoy y agenda tu visita para descubrir tu próxima vivienda junto al mar.

Localización

Economía

Esta información que se proporciona aquí está sujeta a errores y no forma parte de ningún contrato. La oferta se puede cambiar o retirar sin previo aviso. Los precios no incluyen los gastos de compra, ni notaria, registro IVA/ITP/AJD

Calcular hipoteca

Cambio de divisas

  • Libras: 306.757 GBP
  • Rublo Ruso: 306.757 RUB
  • Franco Suizo: 326.562 CHF
  • Yuan Chino: 2.895.737 CNY
  • Dolar: 410.468 USD
  • Corona Sueca: 3.809.186 SEK
  • Corona Noruega: 4.148.414 NOK

Solicitar información

Responsable del tratamiento: Lundquist & Nielsen SLU, Finalidad del tratamiento: Gestión y control de los servicios ofrecidos a través de la página Web de Servicios inmobiliarios, Envío de información a traves de newsletter y otros, Legitimación: Por consentimiento, Destinatarios: No se cederan los datos, salvo para elaborar contabilidad, Derechos de las personas interesadas: Acceder, rectificar y suprimir los datos, solicitar la portabilidad de los mismos, oponerse altratamiento y solicitar la limitación de éste, Procedencia de los datos: El Propio interesado, Información Adicional: Puede consultarse la información adicional y detallada sobre protección de datos Aquí.
Calificación energética
Calificación energética: B