09:00 - 17:00

Bungalow · New Build MURCIA · San Javier · pueblo

Ref.: R-51735
74m2 <20m2 2 2 Yes
272.900€
Notify price change

Key features

Bedrooms: 2
Baths: 2
Built: 74m2
Plot: 20m2
Energy Rating: B

Features

Solarium: Yes
Air Conditioning: Pre-Installed
Double Bedrooms: 2
Number of Parking Spaces: 1
Near Schools
Near Commercial Center
Location: Coastal, Urbanisation
Near Bus Route
Beach: 3500 Meters
Near Trees
BBQ
Terrace: 87 Msq.
Parking
Communal Pool
Gated

Description

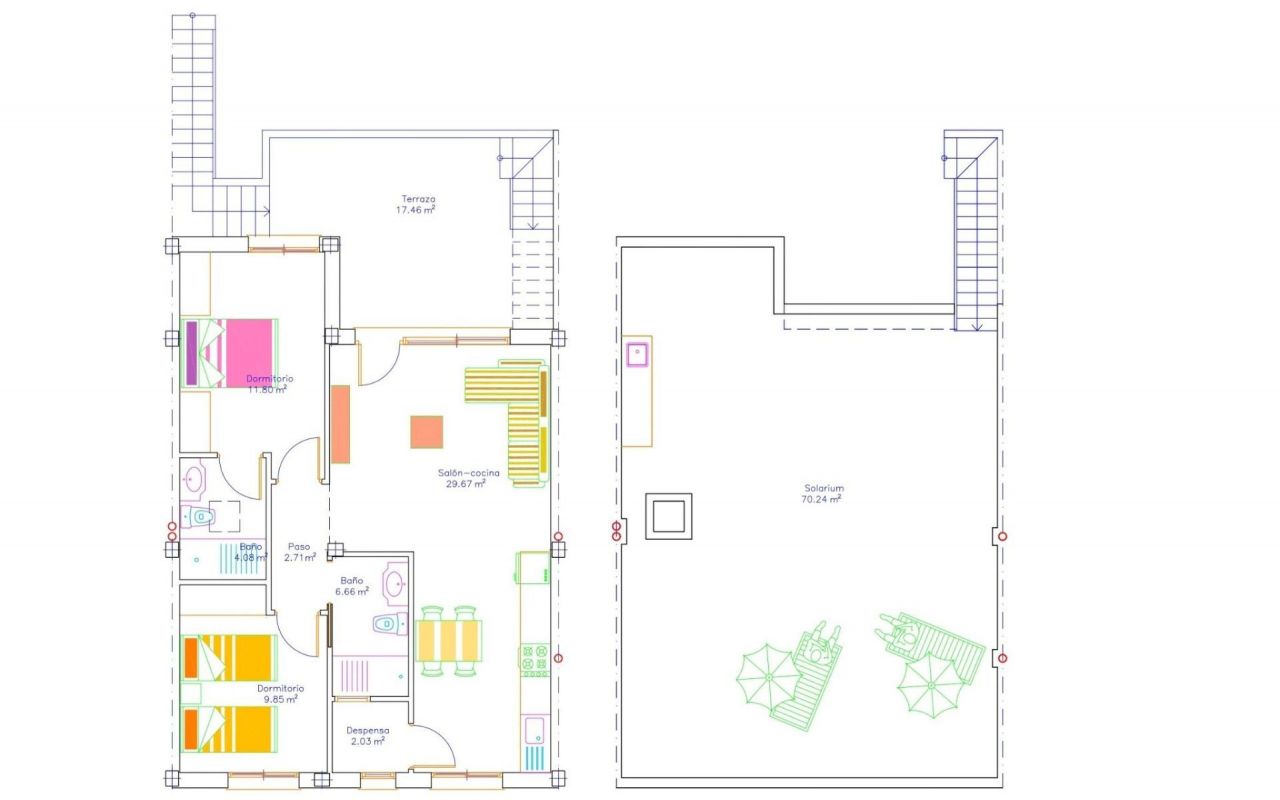
Modern Apartments and Penthouses with Solarium in San Javier Near Mar Menor Prime Location in San Javier Close to the Beach This new residential development of 16 modern homes is located in the vibrant town of San Javier, Murcia, just 3.5 km from the calm waters of the Mar Menor. The area is well known for its year round sunshine, relaxed coastal lifestyle and excellent services. Within walking distance you will find supermarkets, restaurants, sports facilities and everyday amenities, making this an ideal place for both permanent living and holiday escapes. The Mediterranean coast is only a short 10 minute drive away, offering a wide variety of beaches and seaside promenades. Choice of Ground Floors with Garden or Top Floors with Private Solarium Buyers can choose between ground floor homes with 3 bedrooms and 2 bathrooms, one of them ensuite, featuring a front terrace and a private rear garden with summer kitchen. Alternatively, top floor properties offer 2 bedrooms and 2 bathrooms, also with one ensuite, a front terrace and a large private solarium with summer kitchen, perfect for enjoying the sun all year round. Each layout has been carefully designed to maximize outdoor living and natural light. Attractive Communal Areas for Relaxation The residential complex includes a beautifully landscaped communal area with a swimming pool with jacuzzi zone, bicycle parking and green gardens where residents can relax and socialize in a peaceful environment. Quality Features Designed for Modern Comfort Each property is built to high standards of comfort and energy efficiency. Exterior carpentry in anthracite PVC with thermal break and double glazing provides excellent insulation and solar protection. Kitchens come fully equipped with appliances. Homes include preinstallation for ducted air conditioning and an aerothermal system for hot water, ensuring lower energy consumption. Bathrooms are delivered with vanity unit, mirror and shower screen. Each property also includes one assigned parking space. Excellent Connectivity and Nearby Points of Interest San Javier offers excellent road connections and easy access to key destinations in the region. Mar Menor beaches 3.5 km Mediterranean beaches 10 km Roda Golf and Mar Menor Golf 8 km Los Alcazares Marina 7 km Murcia Corvera Airport 30 km Alicante Airport 75 km Zenia Boulevard Shopping Center 30 km Enjoy the Mediterranean Lifestyle in San Javier This development offers the perfect combination of location, comfort and outdoor living close to the sea and golf courses. Contact us today for more information or to arrange a visit to your future home in San Javier.

Location

Economy

This info given here is subject to errors and do not form part of any contract. The offer can be changed or withdrawn without notice. Prices do not include purchase costs.

Calculate mortgages

Currency exchange

  • Pounds: 237.881 GBP
  • Russian ruble: 237.881 RUB
  • Swiss franc: 251.914 CHF
  • Chinese yuan: 2.196.381 CNY
  • Dollar: 321.940 USD
  • Swedish krona: 2.948.139 SEK
  • Norwegian Crown: 3.006.539 NOK

Request information

Responsable del tratamiento: Lundquist & Nielsen SLU, Finalidad del tratamiento: Gestión y control de los servicios ofrecidos a través de la página Web de Servicios inmobiliarios, Envío de información a traves de newsletter y otros, Legitimación: Por consentimiento, Destinatarios: No se cederan los datos, salvo para elaborar contabilidad, Derechos de las personas interesadas: Acceder, rectificar y suprimir los datos, solicitar la portabilidad de los mismos, oponerse altratamiento y solicitar la limitación de éste, Procedencia de los datos: El Propio interesado, Información Adicional: Puede consultarse la información adicional y detallada sobre protección de datos Aquí.
Energy Rating
Energy rating: B