09:00 - 17:00

Villa · New Build Alicante · Dolores · Sector 3

Ref.: R-14922
183m2 <256m2 3 2 Yes
465.000€
Notify price change

Key features

Bedrooms: 3
Baths: 2
Built: 183m2
Plot: 256m2
Energy Rating: B

Features

Garden
Private Pool
Parking
Gated
Solarium: Yes
Number of Parking Spaces: 1
Near Schools
Near Commercial Center
Double Bedrooms: 3
Terrace: 85 Msq.
Beach: 12000 Meters
Location: Rural
Laundry Room
Toilet: 1

Description

Modern New Build Villas in Dolores, Alicante

Contemporary Living in the Heart of the Vega Baja
Discover this exclusive new build villa development in Dolores, a charming town in the Vega Baja del Segura region, south of Alicante. Known for its traditional Spanish character and surrounded by lush countryside, Dolores offers a peaceful lifestyle while providing all daily amenities within walking distance — shops, restaurants, schools, and local services.

Situated just 12 km from the beaches of La Marina and Guardamar del Segura, and with easy access to the AP-7 motorway, this residential area is perfectly connected to the main coastal towns of the Costa Blanca.

Elegant Modern Villas with Private Pool
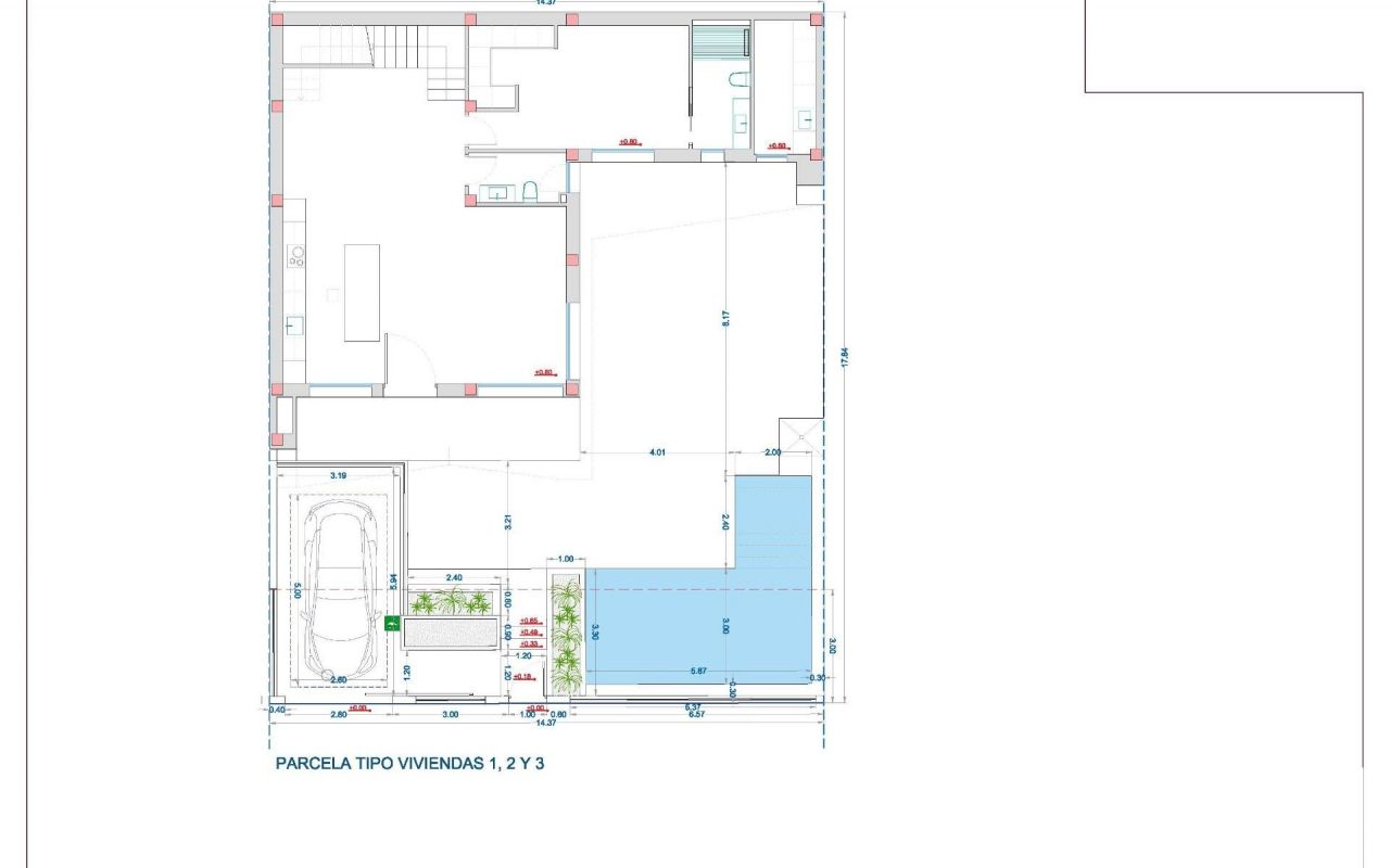
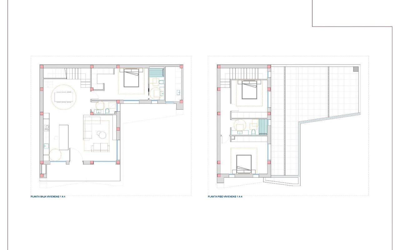
These modern two-story villas have been designed for comfort, functionality, and style. On the ground floor, you’ll find a bright open-plan kitchen connected to the living-dining area, with large sliding doors opening directly to the terrace and private garden with swimming pool. The ground floor also features one bedroom with an ensuite bathroom, a guest toilet, and a convenient outdoor laundry area.

On the first floor, there are two additional bedrooms, a bathroom, and access to a large 60 m2 open terrace, perfect for sunbathing or relaxing while enjoying the Mediterranean climate. Each home includes private parking inside the plot.

Quality Finishes and Modern Comfort
Built with high-quality materials and contemporary design, these villas come fully equipped for year-round living. Main features include:
Exterior carpentry with thermal bridge break
Motorized blinds
Hot water system powered by aerothermal energy
Ducted air conditioning fully installed
Private swimming pool
Private parking and landscaped garden

The interiors combine elegance and functionality, maximizing natural light and offering an exceptional living environment with a strong connection between indoor and outdoor spaces.

Prime Location Close to Everything
Dolores enjoys a strategic location, providing a balance between tranquility and accessibility.
Key distances:
Beaches of La Marina and Guardamar del Segura: 12 km
Alicante Airport (Elche-El Altet): 30 km (25 minutes by car)
Murcia-Corvera Airport: 70 km (1 hour by car)
Golf Courses: 15 km
Alicante city: 40 km

Live the Mediterranean Lifestyle in Dolores
These new build villas in Dolores offer the perfect combination of modern design, comfort, and proximity to the coast. Ideal for both permanent residence and holiday living, they provide a serene Mediterranean lifestyle surrounded by nature and convenience.

Contact us today to arrange a viewing and make your dream home in Dolores a reality.

Location

Economy

This info given here is subject to errors and do not form part of any contract. The offer can be changed or withdrawn without notice. Prices do not include purchase costs.

Calculate mortgages

Currency exchange

  • Pounds: 403.225 GBP
  • Russian ruble: 403.225 RUB
  • Swiss franc: 429.567 CHF
  • Chinese yuan: 3.714.281 CNY
  • Dollar: 543.120 USD
  • Swedish krona: 5.044.553 SEK
  • Norwegian Crown: 5.062.688 NOK

Request information

Responsable del tratamiento: Lundquist & Nielsen SLU, Finalidad del tratamiento: Gestión y control de los servicios ofrecidos a través de la página Web de Servicios inmobiliarios, Envío de información a traves de newsletter y otros, Legitimación: Por consentimiento, Destinatarios: No se cederan los datos, salvo para elaborar contabilidad, Derechos de las personas interesadas: Acceder, rectificar y suprimir los datos, solicitar la portabilidad de los mismos, oponerse altratamiento y solicitar la limitación de éste, Procedencia de los datos: El Propio interesado, Información Adicional: Puede consultarse la información adicional y detallada sobre protección de datos Aquí.
Energy Rating
Energy rating: B