09:00 - 17:00

Bungalow · Nybygg Alicante · Torrevieja · Lago Jardín II

Ref: R-50932
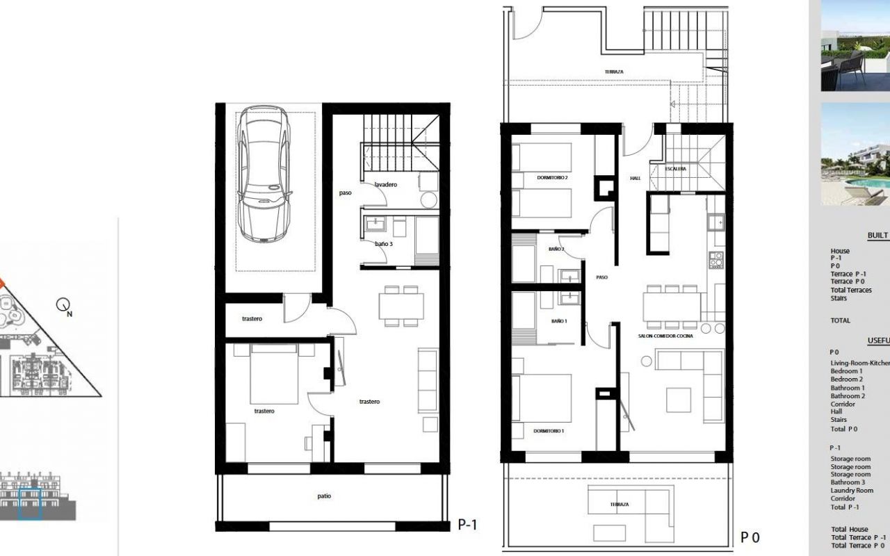
138m2 2 3 Ja

Nøkkelinformasjon

Soverom: 2
Baderom: 3
Bygget: 138m2
Energisertifisering: B

Karakteristikk

Near Schools
Near Commercial Center
Location: Coastal, Urbanisation
Beach: 4000 Meters
Terrace: 44 Msq.
Parkering
Felles basseng
Inngjerdet
Air Conditioning: Pre-Installed
Under-Build / Basement
Double Bedrooms: 2
Number of Parking Spaces: 1

Beskrivelse

NYBYGG BOLIG I LOS BALCONES, TORREVIEJA Nybygget boligkompleks med tomannsboliger og bungalower som ligger i Los Balcones med utsikt til den rosa innsjøen. Nybygde bungalower i første etasje har 2 soverom, 3 bad, åpen kjøkkenløsning med romslig stue, garderober, halvkjeller, privat terrasse og underjordisk parkeringsplass. Nytt eksklusivt boligområde med store fellesarealer; hager, hage-gym, lekeplass, 2 store felles svømmebasseng - ett av dem for voksne og det andre for barn. Los Balcones er en liten by som ligger nær Torrevieja sør. Torrevieja er en spansk by i provinsen Alicante, på Costa Blanca. Det er kjent for sitt typiske middelhavsklima og kystlinje. Den har strandpromenader med feriesteder langs sandstrendene. Det lille museet for havet og saltet rommer utstillinger om byens fiske- og salthistorie. I det indre har naturparken Lagunas de La Mata-Torrevieja stier og to salte laguner, den ene rosa og den andre grønn. Alicante flyplass ligger 40 minutter unna og Murcia flyplass ca. 1 time unna.

Beliggenhet

Økonomi

PRISER er oppgitt EX 10% ITP på bruktbolig og skjøtekostnader / og på nybygg ex 10%IVA og 1,5% AJD og skjøtekostnader- Du kan låne i spanske banker 50- 70% av laveste valør, enten kjøpesummen eller taksten finansieres opp til 30 år, max til lånetager fylte 70 år, renten er Euribor pluss ca 2,5 % i gjennomsnitt. Kontakt oss for ytterligere informasjon.

Beregn boliglån

Valutakalkulator

  • Britiske Pund: 273.231 GBP
  • Russiske rubel: 273.231 RUB
  • Sveitsiske Franc: 293.360 CHF
  • Kinesiske yuan: 2.568.164 CNY
  • US Dollar: 368.298 USD
  • Svenske kroner: 3.370.752 SEK
  • Norske kroner : 3.699.518 NOK

Be om informasjon

Responsable del tratamiento: Lundquist & Nielsen SLU, Finalidad del tratamiento: Gestión y control de los servicios ofrecidos a través de la página Web de Servicios inmobiliarios, Envío de información a traves de newsletter y otros, Legitimación: Por consentimiento, Destinatarios: No se cederan los datos, salvo para elaborar contabilidad, Derechos de las personas interesadas: Acceder, rectificar y suprimir los datos, solicitar la portabilidad de los mismos, oponerse altratamiento y solicitar la limitación de éste, Procedencia de los datos: El Propio interesado, Información Adicional: Puede consultarse la información adicional y detallada sobre protección de datos Aquí.
Energisertifisering
Energiklassifisering: B